Informujemy, iż nasz sklep internetowy wykorzystuje technologię plików cookies a jednocześnie nie zbiera w sposób automatyczny żadnych informacji, z wyjątkiem informacji zawartych w tych plikach (tzw. „ciasteczkach”).

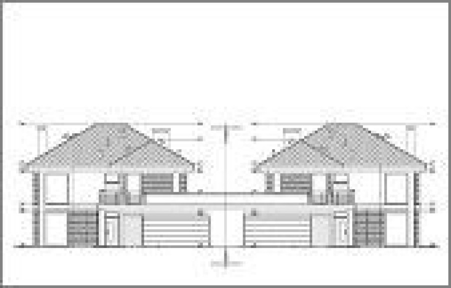
Riwiera 4 wariant G

  • Tylko online

Dane techniczne

powierzchnia
171.84 m²
wysokość
8.9 m
kąt dachu
30 °
szerokość działki
37.6 m
Liczba pokoi
6
Powierzchnia zabudowy
160.32
kondygnacje
parterowe
garaż
z garażem 2 st.
dach
dach wielospadowy
konstrukcja
murowane
zabudowa
domy bliźniacze
piwnica
bez piwnicy
dostępne odbicie lustrzane
Nie
Pow. użytkowa
171.84 m²
Liczba łazienek
3
Pow. netto
177.8

Opis projektu

Wersja zbliźniaczona Riwiery 4 wariant B

O autorze projektu Riwiera 4 wariant G

9 950 zł

Tylko u nas możesz negocjować cenę!
Skorzystaj z tej możliwości.

Lustrzane odbicie: niedostępne.

Masz dodatkowe pytania?
Zadzwoń lub zamów rozmowę.

Zamów rozmowę

Pomożemy Ci dopasować do twoich potrzeb mymarzony projekt, wpisz swój numer telefonu nasz konsultant oddzwoni.

Negocjuj cenę projektu Riwiera 4 wariant G

Zapytaj pytanie o projekt Riwiera 4 wariant G

Oceny i komentarze

Napisz swoją opinię