- Tylko online
Masz pytania? Chciałbyś negocjować cenę
Zadzwoń! 577 575 011
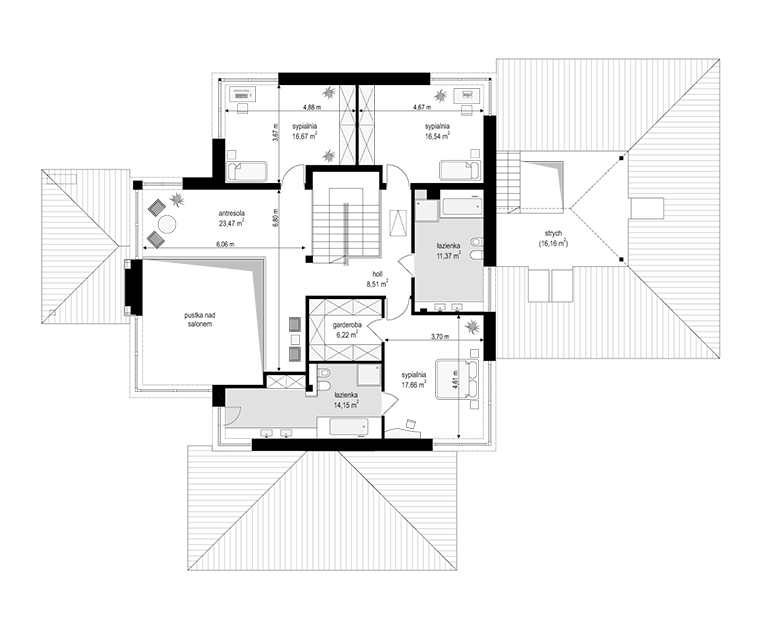
Przerobiony wariant C z podpiwniczeniem: zmieniony kąt nachylenia dachu na 19,52 stopni
