- Tylko online
Masz pytania? Chciałbyś negocjować cenę
Zadzwoń! 577 575 011
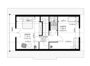
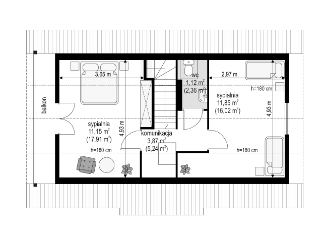
Wariant poszerzony o 1 m, łazienka na poddaszu, ogrzewanie gazowe.
