- Tylko online
Masz pytania? Chciałbyś negocjować cenę
Zadzwoń! 577 575 011
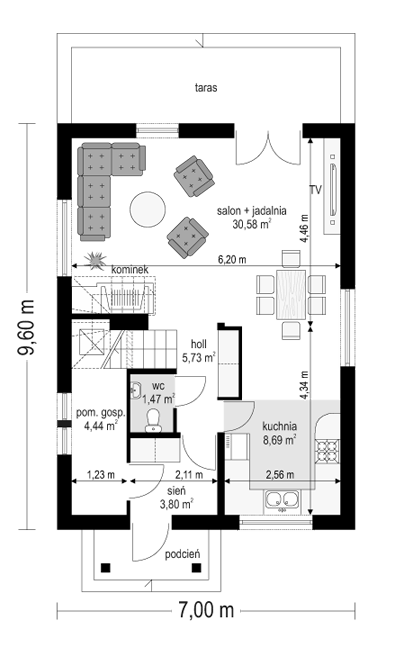
Projekt domu Adaś to idealna propozycja dla czteroosobowej rodziny. Dom Adaś został zaprojektowany z naczółkowym dachem. Wnętrze ukształtowano z podziałem na część ogólną, dzienną - z salonem oraz część prywatną oraz nocną z trzema sypialniami i łazienką.Dostępna jest wersja projektu w odbiciu lustrzanym. Projekt domu Adaś występuje w wersjach wariantowych z garażem dobudowanym z boku domu lub garażem od strony elewacji frontowej (D03 z garażem) - jako propozycja MG Projekt na bardzo wąską działkę.
