- Tylko online
Masz pytania? Chciałbyś negocjować cenę
Zadzwoń! 577 575 011
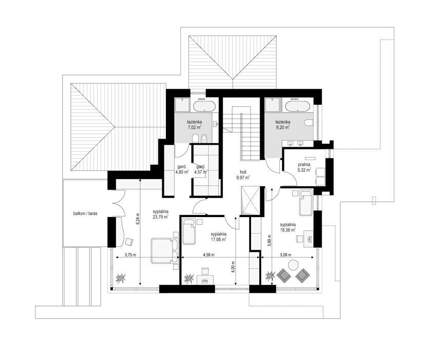
Projekt domu Willa Floryda 3 jest naszą kolejną propozycją projektu z serii nowoczesnych rezydencji Willa Floryda. Dom estetycznie i architektonicznie nawiązuje do serii "Floryd", natomiast układ funkcjonalny i wygląd są zupełnie inne. Budynek jest piętrowy, z dwukondygnacyjnym rdzeniem obudowanym parterowymi częściami od frontu i z tyłu. Dzięki temu bryła jest bardzo urozmaicona i wygląda lekko. Rezydencja Willa Floryda 3 łączy w sobie zalety budynku piętrowego i parterowego, będącego blisko ogrodu i w ludzkiej skali. Elewacje podzielono na poziome pasy: ciemne pasy w grubości kondygnacji i okien, oraz kontrastujące białe pasy w grubości stropów. Jasne części elewacji wystają do przodu, natomiast ciemniejsze fragmenty ścian chowają się, dzięki czemu bryła jest ciekawsza i bardziej rozrzeźbiona. Wejście do domu Willa Floryda 3 zaakcentowane jest pięknym podcieniem, oraz masywną ścianą wykończoną kamieniem, lub betonem architektonicznym. Narożne okno kuchni i przeszklenia piętra dodają frontowi domu lekkości i transparentności. W prawdziwy sposób dom otwiera swoje wnętrze od strony ogrodu. Narożne przeszklenia salonu i sypialni u góry łączą wnętrze z ogrodem. Jednocześnie podcień i pergola oparta na wystającym słupie i podciągu tworzą wewnętrzną przestrzeń tarasową - swoiste patio chroniące prywatność mieszkańców. Nowoczesna sylwetka domu z pewnością wyróżni tą piękną rezydencję z otaczającej nudnej zabudowy. Parter domu Willa Floryda 3 zaprojektowano na planie zbliżonym do kwadratu. Do budynku wchodzimy przez obszerny przedsionek z szatnią, połączony z garażem z jednej strony i spiżarnią i kuchnią z drugiej. W ten sposób zarówno wejście do domu piechotą, jak i przyjazd autem jest wygodny i prowadzi nas w to samo miejsce. Z przedsionka przedostajemy się do holu, z reprezentacyjnymi schodami po prawej i otwartą dużą przestrzenią dzienną po lewej stronie. Pokój dzienny, jadalnia i kuchnia z wyspą łączą się we wspólną niemal 90-metrową powierzchnię. Salon otwiera się na narożny taras w kształcie litery "L". Na parterze mamy jeszcze dodatkową przestrzeń - dwa pokoje o dowolnym przeznaczeniu - rzadkość w piętrowych domach. Mogą to być sypialnie, lub pokoje do pracy czy rekreacji. Albo może to być wydzielone dodatkowe mieszkanko dla seniorów, lub gosposi. Przestrzeń do dowolnej aranżacji. Z domu Willa Floryda 3 i z garażu dostajemy się też do dużego pomieszczenia gospodarczego - kotłowni. Piętro domu to trzy sypialnie: apartament rodziców z własnymi garderobami i łazienką, oraz sypialnie dzieci z szafami wbudowanymi i łazienką dostępną z holu. Na piętrze mamy też pralnię. Hol piętra połączony jest z parterem otworem schodów, oraz niewielką dziurą w stropie. Projekt domu Willa Floryda 3 jest nowoczesny, luksusowy i komfortowy. Oczywiście projekt Willa Floryda 3 jest budynkiem energooszczędnym - dzięki zastosowanym materiałom i instalacjom. Zapraszamy do zapoznania się z pełną ofertą pracowni MG Projekt: projekt domu Willa Floryda, projekt domu Willa Floryda 2, projekt domu Willa Floryda 4, projekt domu Willa Floryda 5, projekt Rezydencja Floryda, projekt Rezydencja Floryda 2, projekt domu Willa Floryda 6, projekt domu Willa Floryda 7, projekt domu Willa Floryda 8.
