- Tylko online
Masz pytania? Chciałbyś negocjować cenę
Zadzwoń! 577 575 011
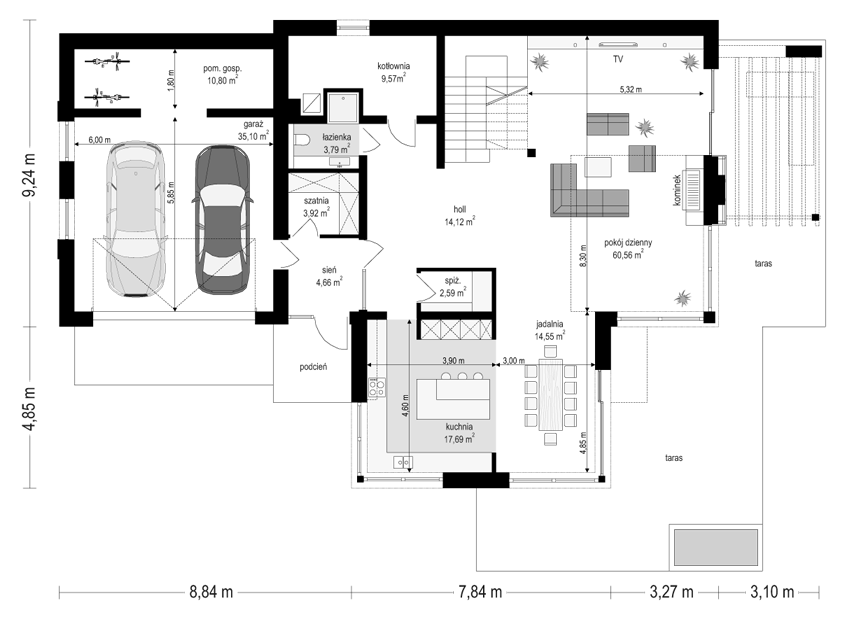
Projekt domu Dom z Widokiem 2 C to projekt piętrowego domu jednorodzinnego o nowoczesnej architekturze, z kolekcji popularnych „Domów z widokiem”. Budynek został złożony z dwóch zasadniczych brył - z piętrowego rdzenia, przykrytego dachem w kształcie litery „L”, oraz parterowej bryły garażu przekrytego trzyspadowym dachem. Z uwagi na dość duży kąt nachylenia dachów, nad piętrem mieści się jeszcze spory strych, który można z powodzeniem zaadaptować na poddasze użytkowe z dodatkowymi pomieszczeniami. Bryła budynku ozdobiona jest ładnym detalem. Narożne okna, duże przeszklenia, kamienne i drewniane okładziny ścian - wszystkie te elementy dodają elewacjom domu szyku i elegancji. Budynek ma reprezentacyjny wygląd - przywołuje na myśl wrażenie komfortu i luksusu, a także solidności i trwałości zastosowanych materiałów i rozwiązań. Wnętrze zostało zaprojektowane z podziałem na przestrzeń dzienną i gospodarczą na parterze, oraz sypialnie na piętrze. Do domu wchodzimy dobrze oświetlonym przedsionkiem z szatnią, od razu do ładnego holu, a dalej do salonu z pustką i pięknymi reprezentacyjnymi schodami, oraz dużej kuchni z wyspą, oraz jadalnią. W części gospodarczej na parterze mamy dwustanowiskowy garaż z dodatkową przestrzenią magazynową, oraz osobną kotłownię. Salon i jadalnia otwierają się dużymi przeszkleniami na szeroki taras częściowo osłonięty pergolą. Z narożnego okna kuchni widzimy wejście i wjazd do domu. Na piętrze zaprojektowano apartament rodziców z garderobą, łazienką i własnym tarasem dostępnym z sypialni, oraz dwie sypialnie dziecięce z łazienką . Hol na piętrze pełni też funkcję antresoli nad salonem, w estetyczny sposób łącząc ze sobą górę i dół. Nad garażem mamy dużą dodatkową przestrzeń strychową, którą można wykorzystać w dowolny sposób. Na poddaszu nad piętrem mamy jeszcze ponad 60-metrowe studio, które również może być w łatwy sposób zaadaptowane na przestrzeń użytkową domu. Projekt domu Dom z Widokiem 2 C to doskonała propozycja dla Inwestorów chcących dużego domu , ale mających ograniczenia powierzchni zabudowy lub niewielkiej działki, a do tego obowiązek budowy domu z dachem o większym kącie nachylenia połaci. Projekt domu Dom z Widokiem 2 C doskonale pasować będzie na działkę z ogródkiem z boku, oraz na działkę z wjazdem na posesję od strony nasłonecznionej - na przykład od południa. W budynku zastosowano energooszczędne materiały i technologie, dzięki czemu dom będzie niedrogi w późniejszej eksploatacji. Zapraszamy do zapoznania się z pełną ofertą pracowni MG Projekt tej serii: Dom z Widokiem, Dom z Widokiem 2, Dom z Widokiem 3, Dom z Widokiem 3F, Dom z Widokiem 4, Dom z Widokiem 5, Dom z Widokiem 6, Dom z Widokiem 6B, Dom z Widokiem B, Dom z Widokiem E.
