- Tylko online
Masz pytania? Chciałbyś negocjować cenę
Zadzwoń! 577 575 011
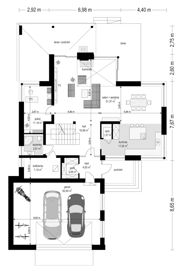
Projekt domu Dom z Widokiem 3 F jest kolejną propozycją naszej pracowni z rodziny Domów z Widokiem. Pod tą nazwą kryje się zupełnie nowy i zupełnie oryginalny nowoczesny piętrowy dom, przeznaczony na węższą działkę, z klasycznym wjazdem od północy lub wschodu i ogrodem od nasłonecznionej strony działki. Projekt domu Dom z Widokiem 3 F zakłada wyciągniętą przed front parterową bryłę garażu, zaprojektowany od ulicy dziedziniec wejściowy i wjazdowy, a z kolei od strony ogrodu maksymalne otwarcie części dziennej na tarasy za pomocą szerokich przeszkleń. Przenikające się bryły głównego piętrowego rdzenia i dodatkowych parterowych brył, w połączeniu z pięknymi narożnymi przeszkleniami, kamiennymi i drewnianymi okładzinami ścian, dają nowoczesną i atrakcyjną sylwetkę budynku. Dom z jednej strony jawi się jako komfortowa, luksusowa podmiejska willa, z drugiej strony ujmuje ludzką skalą i przytulnością. Jednym słowem - jest to propozycja w sam raz dla każdej rodziny. Wnętrze projektu podzielono na część dzienną i gospodarczą na parterze i sypialnie na piętrze. Do domu wchodzimy do przedsionka z szatnią wprost ze szklanego narożnika widocznego od frontu. Przechodzimy stąd wprost do przestrzeni dziennej, składającej się z: salonu z pustką, holu ze schodami, jadalni i kuchni z wyspą. Na parterze mamy jeszcze dodatkowy pokój - gabinet, łazienkę, kotłownię, oraz bardzo duży garaż z przestrzenią magazynową. Na piętrze mieszczą się trzy sypialnie, łazienka, garderoba i pralnia, z dostępem na strych nad garażem. Piętro można dowolnie zaaranżować - dzięki stropowi monolitycznemu można dowolnie przestawiać ścianki działowe. Na górnej kondygnacji mamy też kącik do pracy / antresolę – bibliotekę i pustkę z widocznym poniżej salonem. Projekt domu Dom z Widokiem 3 F jest doskonałą propozycją dla Klientów pragnących domu w sam raz - nie za dużego, a jednocześnie będącego spełnieniem marzeń i aspiracji o komforcie i luksusie wygodnego życia. Dom wbrew pozorom nie ma trudnej konstrukcji - powinien być dość prosty w budowie, a zastosowane energooszczędne materiały i technologie zapewnią niedrogą eksploatację budynku. Zapraszamy do zapoznania się z pełną ofertą pracowni MG Projekt tej serii: Dom z Widokiem, Dom z Widokiem 2, Dom z Widokiem 2C, Dom z Widokiem 3, Dom z Widokiem 4, Dom z Widokiem 5, Dom z Widokiem 6, Dom z Widokiem 6B, Dom z Widokiem B, Dom z Widokiem E.
