- Tylko online
Masz pytania? Chciałbyś negocjować cenę
Zadzwoń! 577 575 011
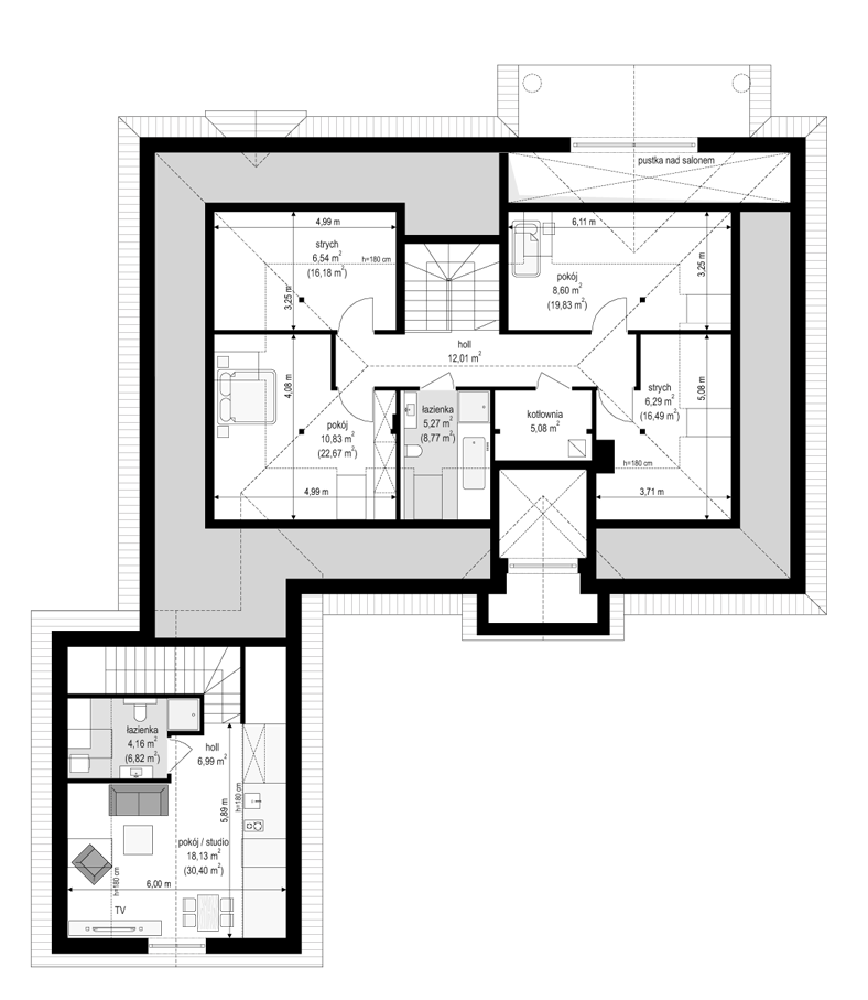
Projekt domu Rezydencja Parkowa 3 D jest to kolejny projekt domu z docenionej przez Klientów kolekcji „Rezydencja parkowa”. Tym razem jest to projekt Rezydencja parkowa 3 wariant D. Projekt choć zachowuje ogólnie podobną stylistykę i detale, to jednak różni się zasadniczo od bazowej wersji. Przede wszystkim budynek jest zwężony, zmniejszony, ma zagospodarowane poddasze, a prócz tego ma przewidziane nad garażem na poddaszu dodatkowe mieszkanko – służbówkę dla gosposi. Architektura domu Rezydencja Parkowa 3 D nawiązuje do polskiego dworku, oraz do detali amerykańskich rezydencji. Elewacja frontowa urozmaicona jest pięknym wejściowym podcieniem z kolumnami i łukowym oknem. Dobudowana część garażowa tworzy boczą oficynę, a cały front układa się w literę L. Od strony ogrodu dom ozdabia szeroki podcień nad tarasem i piękne wysokie łukowe okno salonu, otwierające wnętrze na ogród. Kilka słów o wnętrzu: Na parterze przewidziano otwartą część dzienną salonu połączonego z jadalnią i holem. Przestrzeń dzienna otwiera się szerokim podwyższonym przeszkleniem na obszerny podcień, taras i ogród. Wysokie okno w salonie zastosowano dzięki pustce nad częścią salonu, które otwiera wnętrze aż do sufitu. Z boku przy obszernej sieni mamy zaprojektowaną piękną kuchnię ze spiżarnią. W części prywatnej parteru przewidziano część państwa domu: sypialnię z łazienką i garderobą, oraz duży gabinet – bibliotekę. W skrzydle gospodarczym budynku mamy dwustanowiskowy wygodny garaż, dwa pomieszczenia gospodarcze (w tym pralnię) , oraz osobne wejście i schody na poddasze nad garażem z osobnym mieszkaniem dla gosposi. Na poddaszu domu zaprojektowano dwie wygodne sypialnie, łazienkę i dodatkowe dwa pomieszczenia strychowe, bądź magazynowe. Dom Rezydencja Parkowa 3 D jest komfortową, reprezentacyjną willą dla 3- 4-osobowej rodziny. Zwarta bryła i przemyślana konstrukcja zapewni szybką i efektywną budowę, a zastosowane w projekcie energooszczędne materiały i technologie zapewnią niedrogie koszty późniejszego utrzymania domu. Zapraszamy do zapoznania się z pełną ofertą pracowni MG Projekt: Rezydencja Parkowa, Rezydencja Parkowa 2, Rezydencja Parkowa 3, Rezydencja Parkowa 3 B, Rezydencja Parkowa 3 C, Rezydencja Parkowa 4.
