- Tylko online
Masz pytania? Chciałbyś negocjować cenę
Zadzwoń! 577 575 011
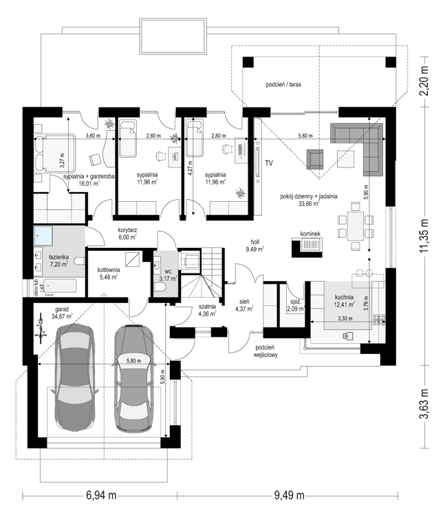
Projekt domu Parterowy 3 jest kontynuacją serii cieszących się dużą popularnością projektów wśród Klientów naszej pracowni. Tym razem nasza propozycja to dom o dachu dwuspadowym, nieco prostszy w budowie i o mniej skomplikowanej bryle. Prosta bryła nie jest jednak nieudanym kompromisem - ciekawe detale, materiały, ładne przeszklenia otwierające wnętrze na ogród tworzą w sumie bardzo atrakcyjny dom jednorodzinny. Całość domu przykrywa prostokątny dwuspadowy dach o kącie nachylenia 30 stopni, kryjący obszerny strych, który stanowi dodatkową przestrzeń w domu - magazyn „rzeczy wszelkich”, lub - po zaadaptowaniu - dodatkowe poddasze użytkowe. Wnętrze domu: wszelkie funkcje mieszczą się na jednym poziomie, na parterze. Z ładnego przedsionka przechodzimy do holu i do części dziennej, z salonem, jadalnią i kuchnią. Kuchnia z narożnym oknem otwiera się na front domu. Obok kuchni mamy spiżarnię. Z salonu mamy dwa duże okna - z jadalni na ogród, oraz przesuwne drzwi balkonowe - na taras i piękny podcień. Z holu przechodzimy korytarzem do części nocnej z sypialniami. Mamy tutaj sypialnię rodziców z garderobą, oraz dwie sypialnie dzieci z szafami wbudowanymi. Wszystkie pokoje mają wyjścia na taras. Dodatkowo zaprojektowano łazienkę, oraz wc z kącikiem na pralkę i suszarkę. Z sieni mamy przejście przez szatnię do dwustanowiskowego garażu i kotłowni. Na strych wchodzimy schodami dostępnymi z holu. Strych to ponad 60 m² dodatkowej przestrzeni. Może to być po prostu magazyn, a można z biegiem czasu wykorzystać tą powierzchnię jako poddasze użytkowe - wystarczy dodać kilka okien i już ! Projekt domu Parterowy 3 został zaprojektowany w prostej, łatwej do budowy bryle. Dom ma zwarty plan, będzie niedrogi w ogrzewaniu i tani w późniejszej eksploatacji. Zastosowane materiały i rozwiązania są energooszczędne. Projekt domu Parterowy 3 to doskonała propozycja dla Inwersorów chcących uzyskać maksymalny efekt z zainwestowanych przez siebie pieniędzy. Chcący ładnego, ale i praktycznego, oraz funkcjonalnego mieszkania dla siebie i swojej rodziny. Zapraszamy do zapoznania się z pełną ofertą pracowni MG Projekt: Parterowy, Parterowy 2, Parterowy 4.
