- Tylko online
Masz pytania? Chciałbyś negocjować cenę
Zadzwoń! 577 575 011
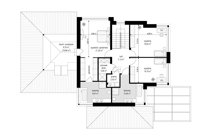
Projekt domu Dom z Widokiem 6 B jest kolejną propozycją domu piętrowego z się serii „Domów z Widokiem” z naszej pracowni. Prezentowany projekt to duży piętrowy dom dla 4-5 osobowej rodziny, z rozbudowanym programem użytkowym, oraz dodatkową - wymarzoną przez wielu Inwestorów oranżerią w części dziennej. Budynek został zaprojektowany na planie litery „T”, z główną piętrową bryłą, oraz dwiema dobudowanymi częściami parterowymi. Architektura projektu domu Dom z Widokiem 6 B jest nowoczesna. Zastosowane materiały i detale tworzą wysmakowaną podmiejską willę. Podział elewacji na poziome pasy, oraz duże narożne przeszklenia, nadają sylwetce domu atrakcyjnego wyglądu. Wnętrze to otwarta jednoprzestrzenna część dzienna na parterze, cześć gospodarczo - garażowa, oraz sypialnie na piętrze. Zrezygnowano z pustki nad pokojem dziennym - która nie każdemu Inwestorowi odpowiada. Do domu wchodzimy przez dużą sień wprost do holu i salonu. Salon, jadalnia i kuchnia tworzą ogromną otwartą wspólną przestrzeń. Kuchnia, jak na skalę budynku jest bardzo duża - zmieści się w niej dowolnej wielkości wyspa. Przy kuchni mamy spiżarnię i przejście do ogrodu zimowego, gdzie domownicy w ogrzewanym green-hausie mogą zjeść posiłek, albo odpocząć. To prawdziwa dodatkowa atrakcja domu. Obok mamy salon z dużym stołem jadalnym i meblami wypoczynkowymi. W wersji bazowej projektu zrezygnowano z kominka - można go bez kłopotu dodać. Z holu i salonu widoczne są reprezentacyjne, ozdobne schody na piętro. Na parterze przewidziano jeszcze dodatkowy pokój - gabinet lub sypialnię gościnną. Na piętrze mamy dwie sypialnie dziecięce, łazienkę, pralnię, oraz apartament rodziców, z sypialnią, garderobą i łazienką, oraz dodatkowym dostępem do strychu nad garażem, który można zaadaptować jako kolejną garderobę, albo pokój rekreacyjny. Projekt domu Dom z Widokiem 6 B to funkcjonalna, nowoczesna, racjonalnie zaprojektowana willa. W projekcie zastosowano energooszczędne rozwiązania. Budynek będzie niedrogi w późniejszej eksploatacji. To doskonała propozycja dla osób marzących o pięknym piętrowym praktycznym domu dla swojej rodziny. Zapraszamy do zapoznania się z pełną ofertą pracowni MG Projekt tej serii: Dom z Widokiem, Dom z Widokiem 2, Dom z Widokiem 2C, Dom z Widokiem 3, Dom z Widokiem 3F, Dom z Widokiem 4, Dom z Widokiem 5, Dom z Widokiem 6, Dom z Widokiem B, Dom z Widokiem E.
