- Tylko online
Masz pytania? Chciałbyś negocjować cenę
Zadzwoń! 577 575 011
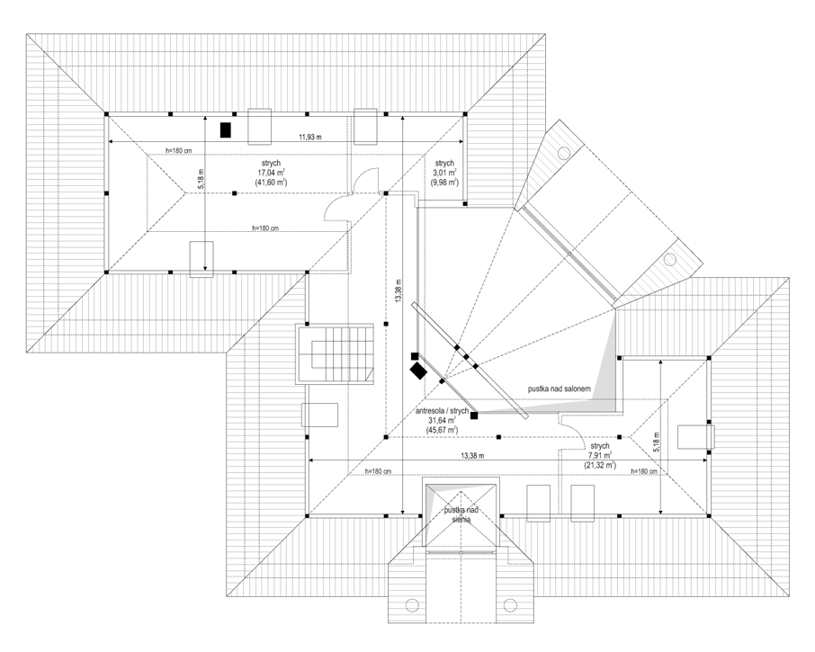
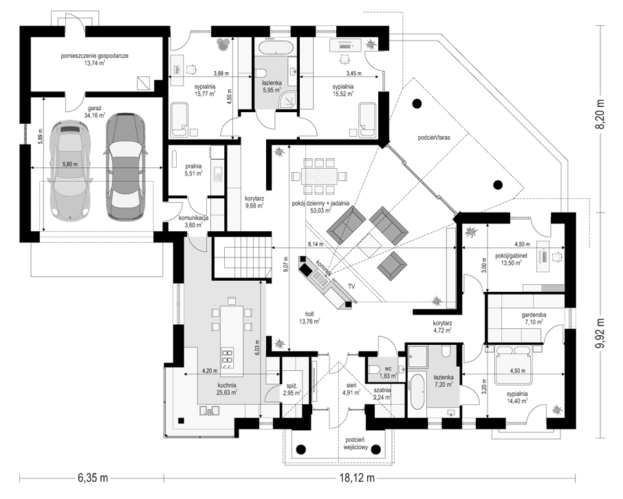
Projekt domu Willa Parkowa 6 jest kolejną wersją projektu z cieszącej się popularnością serii "Willi Parkowych". Dom nawiązuje stylistycznie do pozostałych "Wilii Parkowych", ale ma zdecydowanie inny, ciekawy rzut i układ funkcjonalny. Dom jest parterowy, z dodatkowym strychem- poddaszem, które może pozostać pustą przestrzenią nad parterem, ale też może pełnić rolę poddasza użytkowego. Bryłę zaprojektowano na planie litery "L" z dobudowaną częścią garażową. Dzięki takiemu kształtowi domostwo będzie pasowało zarówno na działkę z ogrodem z tyłu domu, jak i z ogrodem z boku. Projekt domu Willa Parkowa 6 może też być dobrą propozycją dla działki narożnej. Wewnętrzny dziedziniec od frontu przed garażami pozwoli domownikom na swobodne parkowanie autami na podjeździe, jak też na odseparowanie garażu od reprezentacyjnego wejścia do willi - zupełnie jak w amerykańskich rezydencjach. Wewnętrzne patio od strony ogrodu tworzy zamkniętą intymną przestrzeń tarasową z pięknym zadaszeniem nad tarasem i dwukondygnacyjnymi oknami łączącymi salon z ogrodem. Do budynku dostajemy się szerokimi drzwiami, z naświetlami bocznymi i górnymi do podwyższonego przedsionka z szatnią, skąd trafiamy do przestrzeni dziennej domu. Na środku domu stoi prostopadłościenna bryła ściany kominkowej ustawiona pod kątem, która oddziela hol od salonu. Na lewo od wejścia mamy piękną kuchnię z wykuszowym narożnym oknem z widokiem na wejście i dziedziniec wjazdowy. Kuchnia z wyspą i mini-jadalnią do codziennych posiłków. Z kuchni przedostajemy się – po amerykańsku – do części gospodarczej - z kotłownią i pralnią, oraz do garażu. W dwóch bocznych skrzydłach budynku mieszczą się pokoje mieszkańców - dwie sypialnie dziecięce z łazienką w jednym, oraz apartament rodziców z łazienką i garderobą, oraz gabinetem do pracy w drugim. Pośrodku domu, w centralnym miejscu mamy piękny wysoki salon a dużym oknem na taras i ogród. Na górnej kondygnacji zaprojektowano antresolę nad salonem, oraz dodatkową przestrzeń, w której bez problemu można urządzić dodatkowe trzy pokoje, albo wydzielić przestrzeń magazynową domu, czy przeznaczyć całe poddasze na rekreację - dowolnie. Projekt domu Willa Parkowa 6 to reprezentacyjna luksusowa podmiejska rezydencja, stylowej i ponadczasowej architekturze. Dom nie jest mały, ale jego wielkość nie jest przesadzona. Budynek jest energooszczędny i ma sensownie zaprojektowaną konstrukcję. Zapraszamy do obejrzenia wszystkich projektów domów z serii Willa Parkowa: https://www.mgprojekt.com.pl/willa-parkowa, https://www.mgprojekt.com.pl/willa-parkowa-2, https://www.mgprojekt.com.pl/willa-parkowa-3, https://www.mgprojekt.com.pl/willa-parkowa-4, https://www.mgprojekt.com.pl/willa-parkowa-5, https://www.mgprojekt.com.pl/willa-parkowa-6, https://www.mgprojekt.com.pl/willa-parkowa-6-d, https://www.mgprojekt.com.pl/willa-parkowa-7, https://www.mgprojekt.com.pl/willa-parkowa-8-a, https://www.mgprojekt.com.pl/willa-parkowa-8-b, https://www.mgprojekt.com.pl/willa-parkowa-9, https://www.mgprojekt.com.pl/willa-parkowa-10, https://www.mgprojekt.com.pl/willa-parkowa-b, https://www.mgprojekt.com.pl/willa-parkowa-c, https://www.mgprojekt.com.pl/willa-parkowa-d.
