- Tylko online
Masz pytania? Chciałbyś negocjować cenę
Zadzwoń! 577 575 011
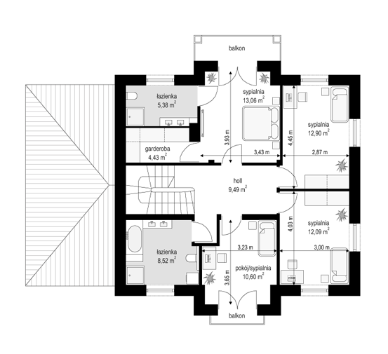
Projekt domu Magnat 3 jest kolejną wersją popularnego projektu z serii „Magnat” - tym razem mniejszy dom, o pomniejszonym rzucie, wymiarach zewnętrznych i powierzchni. Projekt domu Magnat 3 to stylowa willa przeznaczona dla 4- 5-osobowej rodziny. Dom ma pełne dwie kondygnacje - parter i piętro. Budynek zaprojektowano nawiązując do przedwojennej architektury rezydencjonalnej Europy. Bryłę domu zaplanowano na planie prostokąta, z osią symetrii między reprezentacyjnym portykiem wejściowym i eleganckim wyjściem do ogrodu z salonu, przez zadaszony taras ze schodkami. Elewację frontową i ogrodową zdobią piękne okna z podziałami i sztukaterią. Całość bryły przykrywa czterospadowy łagodny dach. Z boku dodana jest bryła garażu. Projekt domu Magnat 3 to taka mała rezydencja - budynek o normalnej, niewyolbrzymionej skali, ubrany w elegancką stylową formę. Parter domu: z obszernego przedsionka przechodzimy do jednoprzestrzennego wnętrza salonu i jadalni, połączonego z holem, z pięknymi lekko zabiegowymi schodami. Salon łączy się z częściowo otwartą kuchnią ze spiżarnią. Od frontu mieści się też dodatkowy pokój - gabinet. Pozostałe pomieszczenia to łazienka, kotłownia, oraz część gospodarcza z garażem. Na piętrze zaprojektowano cztery sypialnie z dwiema łazienkami, w tym apartament rodziców z osobną łazienką, garderobą i balkonem otwartym na ogród. Projekt domu Magnat 3 to przykład ponadczasowej architektury, która przetrwa wszystkie tymczasowe mody. Jednocześnie dom nie jest duży, jest za to dość prosty w budowie, ma praktyczne i funkcjonalne wnętrze. Stanowi idealną propozycję dla osób marzących o stylowej willi, ale chcących trzymać koszty budowy w rozsądnych granicach. Zapraszamy do zapoznania się z pełną ofertą pracowni MG Projekt tej serii: Magnat, Magnat 2, Magnat 4. Zapraszamy!
