- Tylko online
Masz pytania? Chciałbyś negocjować cenę
Zadzwoń! 577 575 011
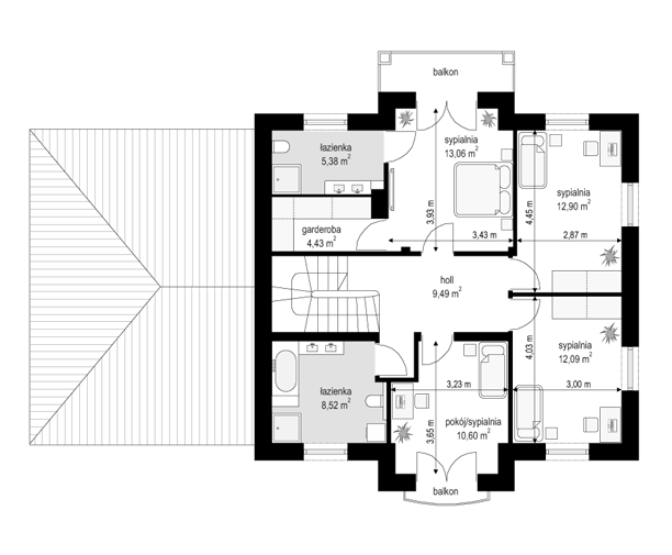
Projekt domu Magnat 4 jest wariantową wersją projektu Magnat 3 - z powiększonym, podwójnym garażem. Jest to stylowy dom piętrowy o klasycznej architekturze przeznaczony dla 4- 5-osobowej rodziny. Budynek zaprojektowano nawiązując do przedwojennej architektury dworkowej i rezydencjonalnej. Prostokątna piętrowa bryła domu przykryta została czterospadowym dachem. Do bryły głównej dobudowana jest część garażowa z dwustanowiskowym garażem. Bryłę główną dzieli oś symetrii między reprezentacyjnym portykiem wejściowym i eleganckim wyjściem do ogrodu z salonu, przez zadaszony taras ze schodkami. po bokach elewacji frontowej i ogrodowej zaprojektowano ładne duże okna zdobione sztukaterią. Projekt domu Magnat 4 to mała „kompaktowa rezydencja” - budynek o normalnej, ludzkiej skali, ubrany w elegancką stylową formę. Parter domu: z dużego przedsionka przechodzimy do jednoprzestrzennego wnętrza salonu i jadalni, połączonego z holem, z pięknymi zabiegowymi schodami. Salon łączy się z częściowo otwartą kuchnią ze spiżarnią. Od frontu mieści się też dodatkowy pokój - gabinet. Pozostałe pomieszczenia to łazienka, kotłownia, oraz część gospodarcza z garażem. Na piętrze zaprojektowano cztery sypialnie z dwiema łazienkami, w tym apartament rodziców z osobną łazienką, garderobą i balkonem otwartym na ogród. Projekt domu Magnat 4 to przykład ponadczasowej architektury, która z pewnością przetrwa tymczasowe mody. Jednocześnie dom nie jest zbyt duży, jest za to prosty w budowie, ma praktyczne i funkcjonalne wnętrze. Stanowi idealną propozycję dla osób marzących o stylowej willi, ale chcących trzymać koszty budowy w rozsądnych granicach. Zapraszamy do zapoznania się z pełną ofertą pracowni MG Projekt tej serii: Magnat, Magnat 2, Magnat 3. Zapraszamy!
