- Tylko online
Masz pytania? Chciałbyś negocjować cenę
Zadzwoń! 577 575 011
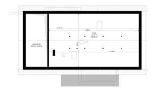
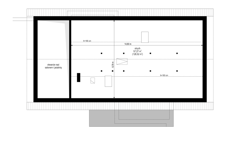
Projekt domu Wymarzony jest bazową wersją z serii naszych domków „Wymarzonych”. Dom zaprojektowano dla czteroosobowej rodziny. Budynek na planie prostokąta, z częściowo wystającym garażem. Dom wieńczy dwuspadowy dach o kącie 30 stopni. Projekt domu Wymarzony łączy prostota konstrukcji i bryły, z ciekawymi detalami i rozwiązaniami architektonicznymi, tworzącymi nietuzinkowy i oryginalny efekt. Nowoczesną stylistykę projektu, uzyskano przez odpowiedni dobór materiałów, okładzin, zastosowanie dużych przeszkleń, otwierających wnętrze na otaczający ogród. Głównymi elementami nadającymi charakter bryle są : wystający przed ścianę frontową garaż z zadaszeniem nad podcieniem wejściowym, pięknie zaakcentowane drzwi wejściowe z naświetlami, oraz część tarasowa przedłużająca salon, która dzięki lokalizacji z boku budynku sprawia, że dom nadaje się doskonale na różne działki - także te z wjazdem od południa. Salon w "Wymarzonym” jest oświetlony z trzech stron, zatem dom można lokalizować na działce z ogródkiem z boku albo z tyłu. Wnętrze domu : Oryginalna lokalizacja garażu, w centralnej części bryły, umożliwia łatwy dostęp komunikacyjny między garażem, przedsionkiem i kotłownią, co jest rzadko spotykane w domach parterowych o prostokątnym kształcie ( przeważnie garaż jest odcięty od bryły, lub znajduje się za sypialniami ). Tutaj garaż jest w idealnym miejscu - przy wejściu, blisko holu i kuchni. Kotłownia obok salonu i kominka sprawia, że mamy jeden wspólny komin w całym budynku. Z przedsionka wchodzimy do holu i części dziennej, z ładną kuchnią z półwyspem, spiżarnią, pralnią i ogrodowym wejściem gospodarczym. Dalej mamy salon z jadalnią o podwyższonym suficie. Pustka nad salonem powiększa wizualnie to piękne pomieszczenie, a wysokie okno w szczycie wpuszcza mnóstwo światła i otwiera salon na ogród i taras z zadaszeniem – żaglem. Z drugiej strony domu mamy trzy sypialnie, łazienkę i garderobę. Nad parterem zaprojektowano strop i krokwiową więźbę dachową, dzięki czemu do dyspozycji jest dodatkowy duży strych - magazyn, do dowolnej aranżacji. Oczywiście można też przeprojektować konstrukcję dachu na wiązary kratownicowe i wyłączyć tą przestrzeń z jakiegokolwiek użytkowania. „Wymarzony 1” jest bardzo komfortowym, wygodnym domem dla czterech osób. Projekt domu Wymarzony ma wszystko czego rodzina może potrzebować. Budynek ma prostą konstrukcję, będzie łatwy w budowie, a dzięki zwartej bryle i świetnym materiałom i ociepleniom jest energooszczędny i będzie tani w utrzymaniu. Zapraszamy do zapoznania się z pełną ofertą pracowni MG Projekt tej serii: Wymarzony 2, Wymarzony 3, Wymarzony 4, Wymarzony 5, Wymarzony 6, Wymarzony 7, Wymarzony 8, Wymarzony 9, Wymarzony 10, Wymarzony 11.
