- Tylko online
Masz pytania? Chciałbyś negocjować cenę
Zadzwoń! 577 575 011
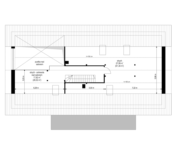
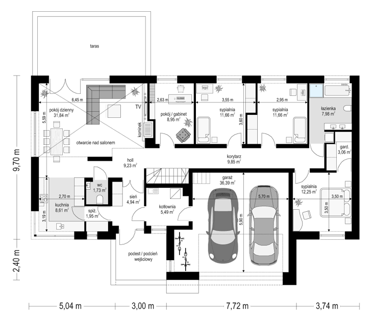
Projekt domu Wymarzony 5 czyli kolejny projekt z serii domów „Wymarzonych” z naszej pracowni. Budynek jest parterowy z poddaszem do zagospodarowania, zbudowany na planie prostokąta, z wystającą na froncie częścią garażową, przykryty dwuspadowym dachem o kącie nachylenia 30 stopni. Projekt domu Wymarzony 5 ma nowoczesną stylistykę i łączy tradycyjną bryłę z nowoczesnymi materiałami wykończeniowymi i detalami. Połączenie tynkowanych fragmentów ścian z okładzinami imitującymi beton, oraz szarą lub grafitową dachówką dają elegancki i reprezentacyjny wygląd budynku. Głównymi detalami stylistycznymi są: wystający garaż, podcień wejściowy i reprezentacyjne drzwi frontowe z naświetlami. W szczycie i z tyłu domu salon zdobią duże przeszklenia otwierające wnętrze na otaczający ogród. Wnętrze: oryginalna lokalizacja garażu, w centralnej części bryły, ułatwia komunikację między garażem, przedsionkiem i kotłownią, co jest rzadko spotykane w domach parterowych o prostokątnym kształcie. Garaż jest w idealnym miejscu - przy wejściu, blisko holu, kuchni i spiżarni. Z przedsionka wchodzimy do holu i na wprost do pokoju dziennego. Salon doświetlony jest z dwóch stron - od ogrodu szerokimi drzwiami tarasowymi, oraz z szczycie budynku podwyższonym oknem z naświetlem wpuszczającym dużo światła i będącym atrakcją przestrzeni dziennej. Dodatkową atrakcją jest oczywiście pustka nad salonem z antresolą na poddaszu. Z drugiej strony domu mamy cztery pokoje, łazienkę i garderobę. Nad parterem zaprojektowano poddasze, z antresolą nad salonem powiększającą jego przestrzeń, oraz dodatkową powierzchnię poddasza, która może pozostać strychem nieużytkowym (magazynem domowym), lub może być zagospodarowana na pokoje użytkowe - według życzenia i potrzeb właścicieli. Projekt domu Wymarzony 5 to komfortowa, wygodna i nowoczesna willa dla cztero-sześcioosobowej rodziny - funkcjonalna i praktyczna. Budynek jest energooszczędny, ma prostą konstrukcję, będzie łatwy w budowie i tani w utrzymaniu. Zapraszamy do zapoznania się z pełną ofertą pracowni MG Projekt tej serii: Wymarzony, Wymarzony 2, Wymarzony 3, Wymarzony 4, Wymarzony 6, Wymarzony 7, Wymarzony 8, Wymarzony 9, Wymarzony 10, Wymarzony 11.
