- Tylko online
Masz pytania? Chciałbyś negocjować cenę
Zadzwoń! 577 575 011
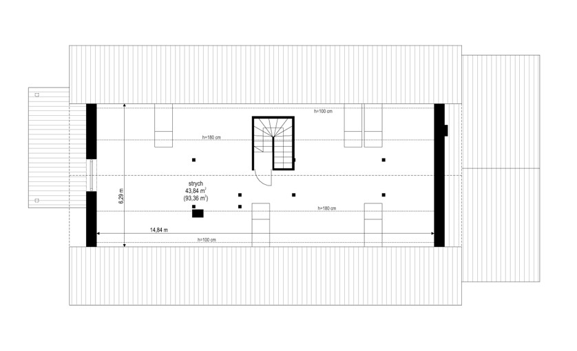
Projekt domu Wymarzony 7 kolejny z serii domów „Wymarzonych” z naszej pracowni. Budynek zaprojektowano jako parterowy ze strychem –poddaszem do dowolnego zagospodarowania. Prostokątną bryłę z dobudowanym garażem przekryto dwoma dachami dwuspadowymi o kącie nachylenia 30 stopni. Projekt domu Wymarzony 7 ma nowoczesną stylistykę i łączy tradycyjną bryłę z klasycznym dachem, z nowoczesnymi materiałami wykończeniowymi i detalami. Połączenie białych tynkowanych ścian z okładzinami imitującymi beton, szarą lub grafitową dachówką, oraz drewnianymi ramami okien, dają elegancki i reprezentacyjny wygląd budynku. Głównymi detalami stylistycznymi projektu są: strefa wejściowa, z daszkiem i ładnymi drzwiami wejściowymi, narożne okna salonu, zadaszony częściowo taras ogrodowy. Dom zaprojektowano w taki sposób, aby salon miał doświetlenie z trzech stron budynku, co pozwala lokalizować projekt na niekorzystnych działkach - z wjazdem od południa, czy z ogrodem z boku, albo nawet przed domem (w narożniku). Wnętrze: Projektując wnętrze staraliśmy się sprostać zasadniczemu zadaniu - zaaranżować wygodne wnętrze z salonem i czterema pokojami, oraz wszystkimi potrzebnymi pomieszczeniami dodatkowymi. Do domu wchodzimy wygodnym przedsionkiem wprost do części dziennej, z salonem, jadalnią, częściowo zamkniętą półwyspem kuchnią. Kuchnia połączona jest ze spiżarką, oraz pralnią z wyjściem gospodarczym na tył domu. Z drugiej strony domu mamy trzy sypialnie, w tym sypialnię rodziców z garderoba, łazienkę i dodatkowy pokój – gabinet lub extra sypialnię. Przez podwójne drzwi i dodatkowy korytarz dom łączy się z garażem i kotłownią. Nad parterem zaprojektowano strych - poddasze, które może pozostać strychem nieużytkowym (magazynem domowym), lub może być zagospodarowane na pokoje użytkowe - według życzenia i potrzeb właścicieli. Projekt domu Wymarzony 7 to komfortowy, wygodny dom dla cztero- pięcioosobowej rodziny - funkcjonalny i praktyczny. Budynek jest energooszczędny, ma prostą konstrukcję, będzie łatwy w budowie i tani w utrzymaniu. Zapraszamy do zapoznania się z pełną ofertą pracowni MG Projekt tej serii: Wymarzony, Wymarzony 2, Wymarzony 3, Wymarzony 4, Wymarzony 5, Wymarzony 6, Wymarzony 8, Wymarzony 9, Wymarzony 10, Wymarzony 11.
