- Tylko online
Masz pytania? Chciałbyś negocjować cenę
Zadzwoń! 577 575 011
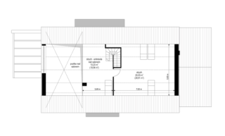
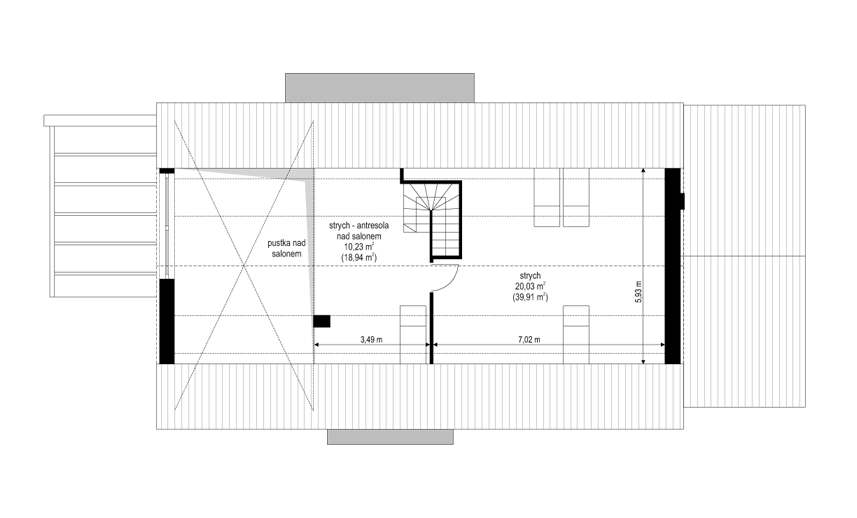
Projekt domu Wymarzony 8 to kolejny dom z serii projektów „Wymarzonych” z naszej pracowni. Budynek został zaprojektowany w modnej stylistyce „domu-stodoły”. Dom jest parterowy z poddaszem. Przykryty został dwuspadowym dachem o kącie nachylenia 35 stopni. Dach nie ma okapów, bryła jest maksymalnie prosta, nowoczesna, z dostawionymi od frontu i tyłu pudełkowymi zadaszeniami kryjącymi wejście i wykusz kuchni. W projekcie zastosowano ciekawe detale i materiały uatrakcyjniające wygląd zewnętrzny. Połączenie dachu krytego blachą na rąbek stojący, białych ścian, szarych okładzin i drewnianych ram stolarki okiennej dają świetny efekt wizualny. Dom Wymarzony 8 jest nowoczesny, prosty, a zarazem elegancki i reprezentacyjny. Głównym detalem wyróżniającym elewację frontową jest część wejściowa, z podestem, ciekawym pudełkowym zadaszeniem i drzwiami wejściowymi z naświetlami. Od strony elewacji tylnej zabieg ten powtórzono w wykuszu kuchni. Niewątpliwie najciekawszy jest szczyt domu z oknem biegnącym przez całą wysokość elewacji, które doświetla salon z pustką i antresolą, otwierając wnętrze na taras z pergolą i ogród. Dom zaprojektowano w taki sposób, aby salon miał doświetlenie z trzech stron budynku, co pozwala lokalizować go na niekorzystnej działce - z wjazdem od południa, czy z ogrodem z boku. Projektując wnętrze staraliśmy się sprostać zasadniczemu zadaniu - zmieścić wygodne cztery pokoje + salon, oraz wszystkie potrzebne pomieszczenia dodatkowe. Do domu wchodzimy wygodnym przedsionkiem wprost do części dziennej, z salonem, jadalnią i częściowo zamkniętą półwyspem kuchnią. Kuchnia połączona jest ze spiżarką, oraz pralnią z wyjściem gospodarczym na tył domu. Z drugiej strony domu mamy trzy sypialnie, w tym sypialnię rodziców z garderoba, łazienkę i dodatkowy pokój – gabinet lub extra sypialnię. Przez podwójne drzwi i dodatkowy korytarz dom łączy się z garażem i kotłownią. Nad parterem zaprojektowano poddasze, składające się z pustki nad salonem, następnie antresoli ze schodami będącej przedłużeniem salonu na dole, oraz z dodatkowej przestrzeni strychu-poddasza, którą można pozostawić jako strych (magazyn), albo zamienić na dodatkowe pokoje użytkowe - wedle życzenia właściciela. Projekt domu Wymarzony 8 to komfortowy, wygodny dom o nowoczesnej i atrakcyjnej architekturze, przeznaczony dla cztero- pięcioosobowej rodziny. Budynek jest energooszczędny, ma prostą konstrukcję, będzie łatwy w budowie i tani w utrzymaniu. Zapraszamy do zapoznania się z pełną ofertą pracowni MG Projekt tej serii: Wymarzony, Wymarzony 2, Wymarzony 3, Wymarzony 4, Wymarzony 5, Wymarzony 6, Wymarzony 7, Wymarzony 9, Wymarzony 10, Wymarzony 11.
