- Tylko online
Masz pytania? Chciałbyś negocjować cenę
Zadzwoń! 577 575 011
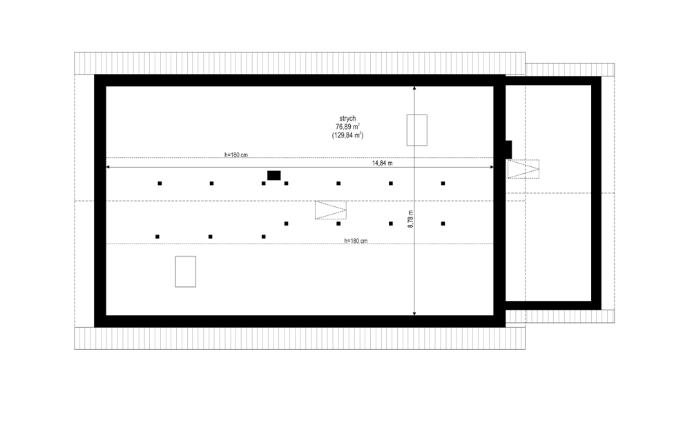
Projekt domu Wymarzony 10 to kolejny dom z kolekcji naszych projektów „Wymarzonych”. Jest to najprostsza i najbardziej ekonomiczna wersja z tej serii domów. Prostokątną bryłę z dobudowanym garażem przekryto dwoma dachami dwuspadowymi o kącie nachylenia 30 stopni. Projekt domu Wymarzony 10 ma nowoczesną ale powściągliwą w wyrazie stylistykę i łączy tradycyjną bryłę z nowoczesnymi detalami i materiałami wykończeniowymi.Połączenie białych tynkowanych ścian z szarymi wstawkami, grafitową dachówką, oraz drewnianymi ramami okien, dają elegancki i czysty wygląd budynku. Główne ozdoby elewacji to : wejście z daszkiem i ładnymi drzwiami frontowymi, oraz strefa tarasowa od ogrodu z dużymi przeszkleniami z salonu i markizą. Dom zaprojektowano na działkę z ogrodem i oświetleniem słonecznym z tyłu lub z boku budynku. Wnętrze : dom mieści w sobie wygodną cześć dzienną, oraz aż pięć dodatkowych pokoi, co przy niewielkiej powierzchni domu jest bardzo dobrym wynikiem. Dom Wymarzony 10 może być swobodnie użytkowany nawet przez rodzinę 2 + 4. Pokoje mogą być zagospodarowane jako sypialnie dziecięce, albo jeden z pokoi - na przykład ten przy wejściu – może pozostać domowym biurem / gabinetem. Do domu wchodzimy wygodnym przedsionkiem do części dziennej, z salonem, jadalnią i półotwartą kuchnią. W salonie przewidziano ścianę kominkowo – telewizyjną, miejsce na wygodny wypoczynek, a szerokie drzwi balkonowe otwierają pokój dzienny na taras i ogród. Z salonu holem przedostajemy się do części nocnej domu, z sypialnią rodziców z garderoba, oraz sypianiami dzieci. Dalej jest połączenie z częścią garażowo-gospodarczą budynku, przez pomieszczenie gospodarcze, do garażu i kotłowni. Strych nad parterem zaprojektowano jako przestrzeń magazynową, na którą dostajemy się schodkami drabinkowymi. Projekt domu Wymarzony 10 to wygodny dom dla nawet sześcioosobowej rodziny - funkcjonalny i praktyczny. Budynek jest energooszczędny, ma prostą konstrukcję, będzie łatwy w budowie i tani w utrzymaniu. Zapraszamy do zapoznania się z pełną ofertą pracowni MG Projekt tej serii: Wymarzony, Wymarzony 2, Wymarzony 3, Wymarzony 4, Wymarzony 5, Wymarzony 6, Wymarzony 7, Wymarzony 8, Wymarzony 9, Wymarzony 11.
