- Tylko online
Masz pytania? Chciałbyś negocjować cenę
Zadzwoń! 577 575 011
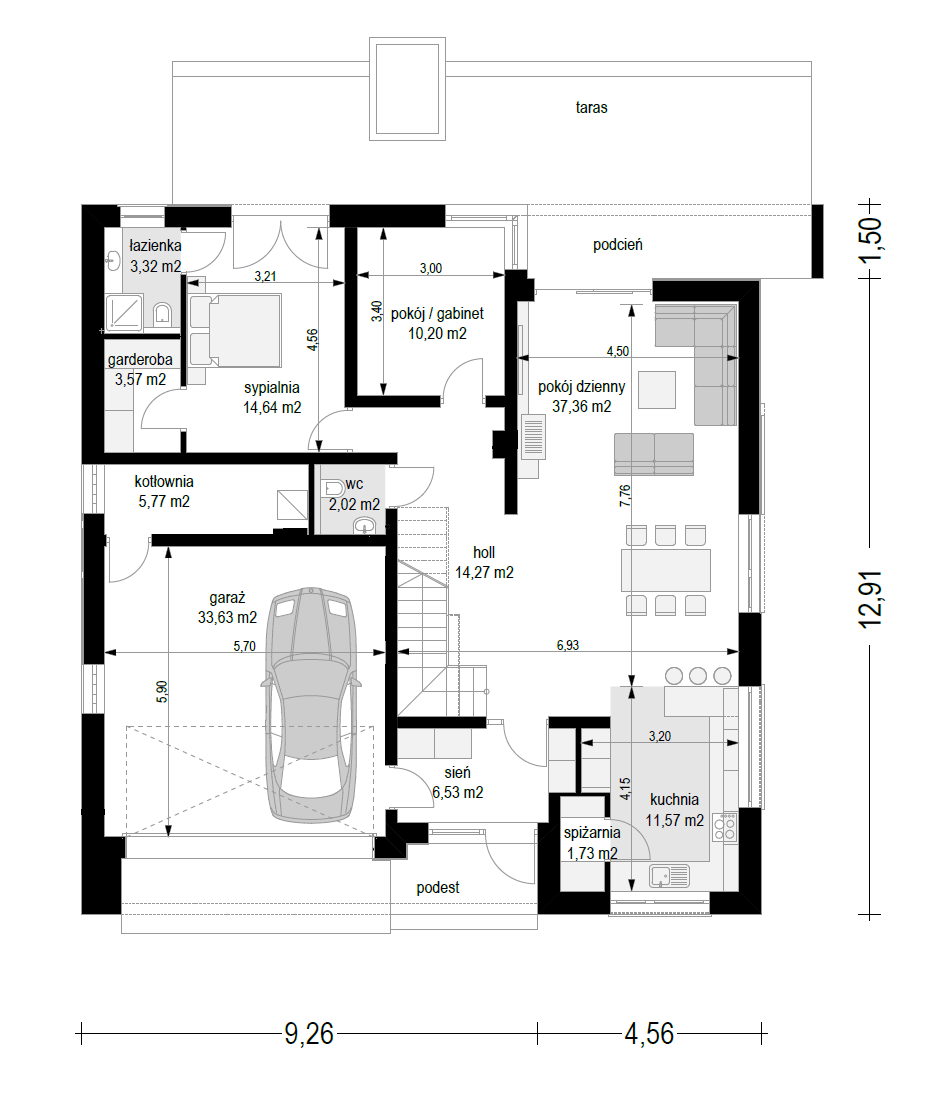
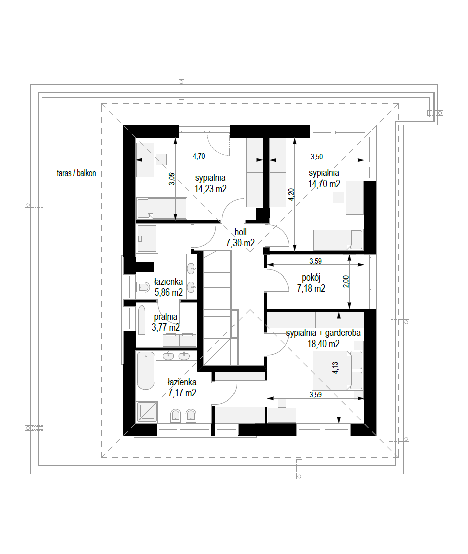
Wariant projektu ze zlikwidowaną pustką nad jadalnią i stworzonym nowym pomieszczeniem w tym miejscu. Dodane nowe okna. Zmieniony dach płaski na taras.
