- Tylko online
Masz pytania? Chciałbyś negocjować cenę
Zadzwoń! 577 575 011
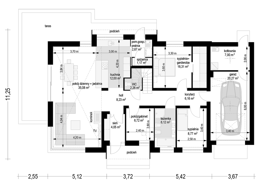
Wariant zwężony o 1,5 m, ze zmienionym układem pomieszczeń, ze zmienionym kształtem tarasu, oraz zlikwidowaną pergolą.
