- Tylko online
Masz pytania? Chciałbyś negocjować cenę
Zadzwoń! 577 575 011
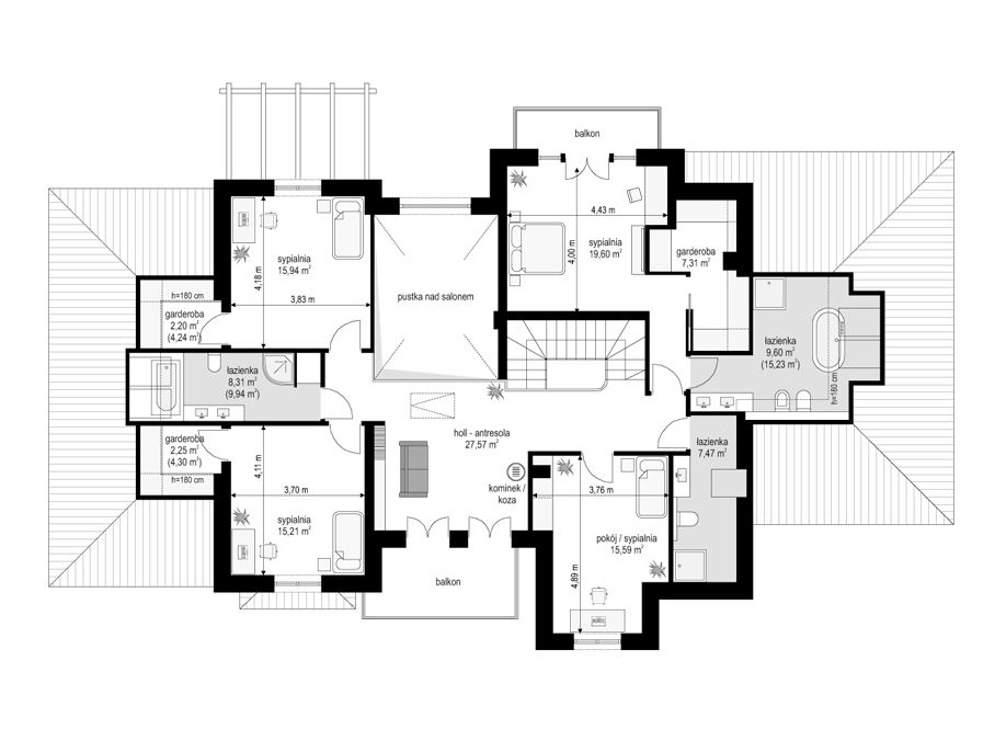
Projekt domu Willa Siedziba to przykład klasycznej reprezentacyjnej willi nawiązującej stylem architektonicznym do najlepszych dwudziestowiecznych wzorów podmiejskich rezydencji. Projekt Willa Siedziba czerpie z historycznych wzorów architektury rezydencyjnej, pełen jest ciekawych detali, a jednocześnie łączy w sobie zupełnie współczesną funkcję wygodnego domu jednorodzinnego. Bryła domu Willa Siedziba Bryłę Willi Siedziby zaprojektowano na planie prostokąta, z szeroką elewacją frontową i ogrodową, tak aby idealnie pasował na parcelę zbliżoną kształtem do kwadratu, zostawiając miejsce na ładny ogród i sporo miejsca od frontu. Rozczłonkowana bryła Willi Siedziba składa się z kilku mniejszych fragmentów. Trzon domu Willa Siedziba to piętrowa część obudowana wokół parterowymi dobudówkami. Od frontu mamy pięknie zaakcentowane wejście, z szerokimi drzwiami z naświetlami, prowadzącymi do przedsionka i dużego holu. Front domu Willa Siedziba to również aż dwa piękne wykusze – kuchni i jadalni domowników, oraz balkon z saloniku-biblioteki na piętrze. Wycofany o kilka metrów w tył garaż nie rzuca się w oczy, a zarazem cofnięcie garażu zwiększa podjazd. Elewacja tylna willi jest równie ciekawa. Mamy tutaj dwukondygnacyjne okno z salonu otwierające widok na ogród i pięknie doświetlające pokój dzienny, oraz dwa wyjścia na taras - pod romantyczną pergolę, oraz do obszernego podcienia - zadaszającego fragment tarasu. Duże okno z gabinetu również otwiera się na stronę ogrodową. Na piętrze szerokie okno balkonowe z balkonem łączy sypialnię państwa domu z widokiem ogrodowym. Willa Siedziba wnętrze Wnętrze domu Willa Siedziba podzielono funkcjonalnie w następujący sposób: strefa wejściowa na parterze składa się z przedsionka z szatnią, połączonego z reprezentacyjnym holem ze schodami na wprost wejścia. Zakończeniem tej osi jest gabinet. Z holu przedostajemy się w lewo do części dziennej, już bardziej prywatnej i mamy tutaj salon z pustką otwarty na antresolę na piętrze, jadalnię – prawdziwy pokój stołowy, oraz kuchnię z mini-jadalnią do spożywania szybkich codziennych posiłków. Prawa strona domu to garaż z pomieszczeniem gospodarczym. Piętro w projekcie domu Willa Siedziba podzielone jest na dwie części - rozdzielone pustką nad salonem i antresolą będącą domową biblioteką a jednocześnie przedłużeniem salonu parteru. Z lewej strony mamy dwie sypialnie dziecięce z garderobami i łazienką, z prawej strony apartament rodziców z garderobą i pokojem kąpielowym, oraz jeszcze jedną sypialnię z łazienką. Dom Willa Siedziba mimo rozbudowanego planu i funkcji, oraz naprawdę reprezentacyjnej sylwetce, nie jest wcale taki wielki. Swoją powierzchnią trochę przewyższa normalny dom jednorodzinny, udowadniając tym samym, że nie trzeba budować tysiąc-metrowego kolosa żeby mieć wszystko - cały komplet. Projekt domu Willa Siedziba jest zaprojektowany z energooszczędnych materiałów, ma dobre ocieplenia, nowoczesne instalacje. Będzie niedrogi w użytkowaniu. Jeśli chodzi o koszty budowy - tanio nie będzie, ale efekt końcowy naszym zdaniem wart jest grzechu. Jeśli chce się mieć coś pięknego, wyrastającego ponad przeciętność - to musi to ponadprzeciętnie kosztować. Ten dom nie pozostawi nikogo obojętnie. Pracownia MGProjekt dysponuje także odbiciem lustrzanym budynku Willa Siedziba i inne wersje projektu domu: Willa Siedziba 2, Willa Siedziba 3.
