- Tylko online
Masz pytania? Chciałbyś negocjować cenę
Zadzwoń! 577 575 011
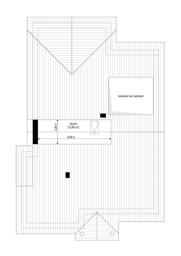
Wariant B z wiązarami o dopuszczalnym nacisku 50 kg/m² (wersja ekonomiczna) zamiast tradycyjnej więźby ciesielskiej ze stropem monolitycznym.
