- Tylko online
Masz pytania? Chciałbyś negocjować cenę
Zadzwoń! 577 575 011
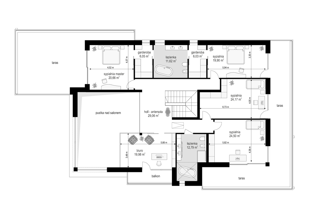
Projekt domu Willa Floryda 5 jest kolejnym z projektów luksusowych rezydencji z serii „Willa Floryda”. Dom jest komfortową, piętrową willą, przeznaczoną na działkę z bocznym lub frontowym ogrodem. Architektura domu łączy w sobie nowoczesną formę z funkcjonalnie rozwiązanym wnętrzem. Stylowa urozmaicona bryła, oraz reprezentacyjne wnętrze podkreślą status i dobry gust właścicieli. Rozczłonkowana piętrowa sylwetka domu przykryta jest czterospadowym dachem, praktycznie niewidocznym z wysokości oczu człowieka, dając wrażenie budynku z płaskim dachem, przy – tak naprawdę zadaszeniu spadzistym ( częstym wymogu w zapisach warunków zabudowy ). Elewacje podzielone zostały na pasy okien przeplecionych białymi belkami oddzielającymi kondygnacje, wprowadzają rytm i porządek. Do budynku wchodzimy eleganckimi szerokimi drzwiami wejściowymi z bocznymi naświetlami pod zadaszeniem balkonu. Front domu ozdabia tutaj pionowa dwukondygnacyjna ściana z naświetlem, duże okna w narożnikach elewacji, oraz wygodna wiata przed trzystanowiskowym garażem. Elewacją ogrodową jest w Willi Florydzie 5 elewacja boczna domu z dużym zadaszonym tarasem - miejscem wieczornych biesiad, oraz wielkimi narożnymi przeszkleniami salonu. Wnętrze parteru to przede wszystkim ogromna jednoprzestrzenna powierzchni połączonych pomieszczeń holu, salonu, jadalni i kuchni. To prawie 150 m² swobodnej, otwartej przestrzeni dziennej. Mieszczą się tutaj reprezentacyjne schody na piętro, salon z dużą pustką i otwarciem na antresolę powyżej, z rozkosznym kompletem wypoczynkowym i ścianą telewizyjną. Mamy tutaj jadalnię ze stołem na 14 lub więcej osób i pięknym kominkiem gazowym, mamy kuchnię z wyspą, a na środku ogródek na reprezentacyjne rośliny i mnóstwo miejsca na ekspozycję wyjątkowych obrazów i innych dzieł sztuki. Wszystko skąpane jest w świetle szerokich dwukondygnacyjnych przeszkleń. Na zapleczu za kuchnią mamy pomieszczenia gospodarcze jak pralnia, spiżarnia, czy kotłownia. Przy wejściu : szatnię, toaletę i przejście do trzystanowiskowego garażu. Piętro domu to z kolei sypialnia master z garderobami i łazienką, oraz z dodatkowym rezerwowym pokojem i dwie sypialnie dziecięce z własną drugą łazienką. Nad salonem wisi pięknie przeszklone pomieszczenie biura domowego lub biblioteki, oraz otwierająca się na parter i na ogród antresola. Wszystkie pokoje na piętrze mają swoje wyjścia na okalające tarasy. Sypialnia master ma osobny bardzo duży taras z widokiem na ogród. Willa Floryda 5 to kolejna propozycja dużego luksusowego domu dla odważnych Inwestorów, chcących spełnić swoje marzenia o wyjątkowym miejscu do życia, chcących cieszyć się nietuzinkową - nowoczesną zarazem niekrzykliwą a gustowną architekturą. Zapraszamy do zapoznania się z pełną ofertą pracowni MG Projekt: projekt domu Willa Floryda, projekt domu Willa Floryda 2, projekt Willa Floryda 3, projekt domu Willa Floryda 4, projekt Rezydencja Floryda, projekt Rezydencja Floryda 2, projekt domu Willa Floryda 6, projekt domu Willa Floryda 7, projekt domu Willa Floryda 8.
