- Tylko online
Masz pytania? Chciałbyś negocjować cenę
Zadzwoń! 577 575 011
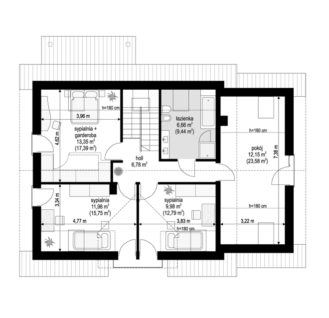
Projekt domu Narcyz 1 to projekt z serii domów "Narcyz". Ideą jaka przyświecała stworzeniu projektów z tej serii było uzyskanie prawdziwego domu - o takim kształcie i funkcji, które większość z nas automatycznie ma w głowie wyobrażając sobie dom. Takie domy rysują nasze dzieci, takie domy są głęboko w naszej pamięci. Bryła projektu domu Narcyz Postanowiliśmy połączyć tradycyjną formę budynku z dwuspadowym dachem z nowoczesnymi rozwiązaniami funkcjonalno - materiałowymi, tak aby jego architektura była maksymalnie ponadczasowa, ładnie się starzała, a jednocześnie żeby nawiązywała do obecnie obowiązującej mody. Tak powstał projekt domku jednorodzinnego Narcyz 1. Projekt domu Narcyz to parterowy dom z poddaszem użytkowym, zbudowany na planie prostokąta, przykryty dwuspadowym dachem. Do głównej bryły projektu domku Narcyz dodana jest część garażowa z poddaszem. Symetryczna proporcjonalna elewacja frontowa w swojej osi symetrii ma podcień wejściowy z solidnymi drzwiami z naświetlem, a nad nimi wisi szeroka lukarna z balkonem. Od strony ogrodu urozmaiceniem elewacji tylnej projektu domu Narcyz jest zadaszenie tarasu, oraz szerokie przesuwne drzwi balkonowe otwierające salon na taras i otaczający ogród. Projekt domu Narcyz wnętrze W projekcie domu Narcyz wnętrze parteru to blisko 40-metrowa połączona przestrzeń salonu, holu i kuchni, reprezentacyjne schody na poddasze, dodatkowy pokój (gabinet lub sypialnia), pomieszczenia gospodarcze, oraz garaż i kotłownia. Taka jak w Narcyzie lokalizacja kotłowni pozwala na instalację zarówno kotła gazowego lub pompy ciepła, jak i kotła na paliwo stałe. W projekcie domku Narcyz 1 sporo miejsca przeznaczono na część gospodarczą, oraz na miejsca do przechowywania: przy przedsionku mamy dużą szatnię – garderobę, dalej pomieszczenie pralni-suszarni, natomiast przy kuchni przewidziano spiżarnię. Na poddaszu domu jednorodzinnego Narcyz, mimo skosów dachu, zmieściły się wygodne cztery pokoje, oraz duża łazienka. Sypialnia rodziców ma własną sporą garderobę. Poddasze Narcyza można powiększyć podnosząc nieco ściany kolankowe – wedle decyzji Inwestora. Dom Narcyz to budynek parterowy z poddaszem użytkowym, który ma zwartą prostą bryłę - budynek jest łatwy w budowie, a nowoczesne rozwiązania instalacyjne i bardzo dobre izolacje sprawiają, że jest domkiem energooszczędnym i ekonomicznym w utrzymaniu. Dom Narcyz to idealna propozycja dla osób, które nie chcą ryzykować, chcą postawić na sprawdzoną od wielu lat architekturę, bez udziwnień i potencjalnych kłopotów, tak aby mieć kontrolę nad procesem budowy, a przede wszystkim nad kosztami realizacji domu. Dom Narcyz to przede wszystkim po prostu śliczny zgrabny domek jednorodzinny, który doskonale wpasuje się w każde otoczenie. Projekt domku jednorodzinnego Narcyz można zamówić w autorskiej pracowni architektonicznej MGProjekt także w odbiciu lustrzanym, oraz kilku wersjach: projekt budynku Narcyz 2, projekt willi Narcyz 3, projekt domu Narcyz 4.
