- Tylko online
Masz pytania? Chciałbyś negocjować cenę
Zadzwoń! 577 575 011
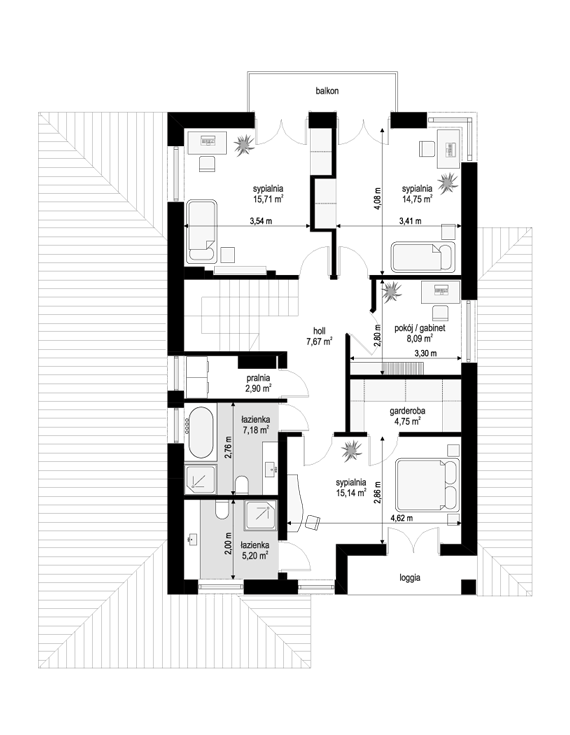
Projekt domu Kasjopea 7 B jest wersją wariantową popularnego projektu Kasjopea 7 z wyższym kątem nachylenia dachu, co może być ułatwieniem dla Inwestorów, na których działkach warunki urbanistyczne nakazują budowę domu z wyższym dachem. Projekt domu Kasjopea 7 B jest energooszczędny, zastosowano w nim najnowsze materiały i instalacje. Budynek ma dość prostą konstrukcję - będzie łatwy i szybki w budowie. Dzięki zwartej bryle i dobrym izolacjom będzie też tani w późniejszej eksploatacji. Jego prostokątna piętrowa bryła przykryta jest czterospadowym dachem. Do głównej bryły dobudowana jest parterowa część nad garażem i dodatkowym pokojem przekryta trzyspadowym dachem. Elewacje domu podzielono na poziome pasy. Ściany parteru są boniowane - ściany piętra tynkowane na gładko. Duże przeszklenia, loggia, podcienie, balkon - stanowią elementy ozdobne urozmaicające zewnętrzną sylwetkę budynku. Zastosowane nowoczesne materiały w stonowanych kolorach tworzą elegancki, powściągliwy efekt. Dom, jako podmiejska willa, doskonale wpasuje się w otoczenie innych zabudowań. Wnętrze budynku podzielono na następujące części: przestrzeń dzienną i gospodarczo garażową na parterze, oraz sypialnie na piętrze. Do domu wchodzimy przez przedsionek połączony z garażem i przechodzimy na wprost do połączonej otwartej powierzchni holu, salonu z jadalnią i kuchni. Salon i jadalnia otwierają się dużymi przeszkleniami na częściowo zadaszony taras, oraz ogród. Wygodna kuchnia z kącikiem na szybkie posiłki jest częściowo wizualne oddzielona od reszty wnętrza. Reprezentacyjne schody stanowią ozdobę wnętrza domu. Za schodami niewielkim korytarzem przechodzimy do dodatkowego pokoju (gabinet, lub sypialnia gościnna) i łazienki. Z kolei z dwustanowiskowego garażu przechodzimy do kotłowni. Na piętrze do dyspozycji mamy cztery pokoje, w tym: apartament rodziców, z własną łazienką, garderobą i tarasem, oraz trzy sypialnie dzieci (jedna mniejsza) z łazienką i pralnią dostępną z holu. Nad piętrem mamy jeszcze do dyspozycji spory strych - dodatkową przestrzeń magazynową domu. Projekt dostępny jest w odbiciu lustrzanym oraz kilku wersjach. Zachęcamy też do sprawdzenia innych projektów tej serii: projekt domu Kasjopea) i jej wersja odświeżona (projekt domu Kasjopea 8), bliźniak (projekt domu Kasjopea 2), ze zmienionym układem pomieszczeń (projekt domu Kasjopea 3), pomniejszona (projekt domu Kasjopea 4), komfortowa (projekt domu Kasjopea 5), największa (projekt domu Kasjopea 6) i z nowocześniejszą architekturą (projekt domu Kasjopea 7).
