Informujemy, iż nasz sklep internetowy wykorzystuje technologię plików cookies a jednocześnie nie zbiera w sposób automatyczny żadnych informacji, z wyjątkiem informacji zawartych w tych plikach (tzw. „ciasteczkach”).

E-259

  • Tylko online

Dane techniczne

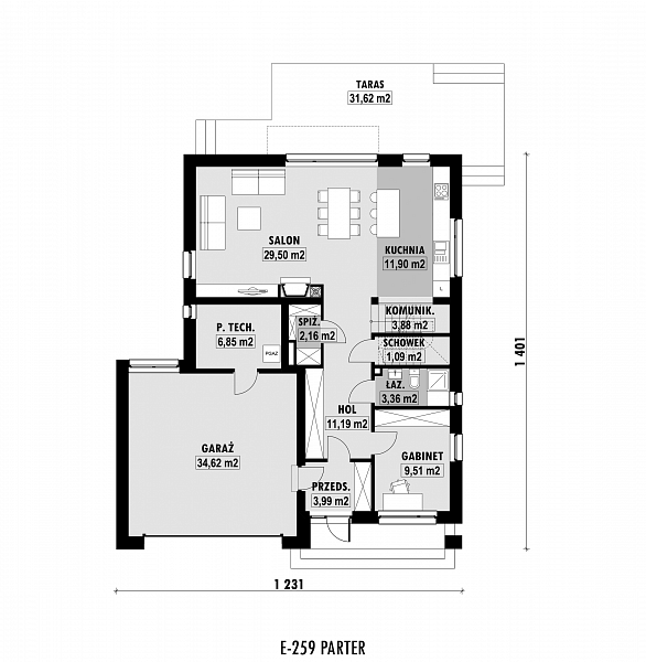
powierzchnia
149.95 m²
wysokość
9.22 m
kąt dachu
45 °
szerokość działki
19.31 m
Liczba pokoi
5
Powierzchnia zabudowy
154.94
kondygnacje
parterowe
garaż
z garażem 2 st.
dach
dach dwuspadowy
piwnica
bez piwnicy
kubatura
572.31 m³
dostępne odbicie lustrzane
Nie
Pow. użytkowa
149.95 m²
długość działki
23.01 m
Powierzchnia dachu
190 m²

Opis projektu

Rzuty

Rzut 1
Rzut 2

Elewacje

Sytuacja

O autorze projektu E-259

5 990 zł

Tylko u nas możesz negocjować cenę!
Skorzystaj z tej możliwości.

Lustrzane odbicie: niedostępne.

Masz dodatkowe pytania?
Zadzwoń lub zamów rozmowę.

Zamów rozmowę

Pomożemy Ci dopasować do twoich potrzeb mymarzony projekt, wpisz swój numer telefonu nasz konsultant oddzwoni.

Negocjuj cenę projektu E-259

Zapytaj pytanie o projekt E-259

Oceny i komentarze

Napisz swoją opinię