Informujemy, iż nasz sklep internetowy wykorzystuje technologię plików cookies a jednocześnie nie zbiera w sposób automatyczny żadnych informacji, z wyjątkiem informacji zawartych w tych plikach (tzw. „ciasteczkach”).

E-267

  • Tylko online

Dane techniczne

powierzchnia
123.35 m²
wysokość
8.78 m
kąt dachu
45 °
szerokość działki
17.01 m
Liczba pokoi
4
Powierzchnia zabudowy
106.86
kondygnacje
parterowe
garaż
bez garażu
dach
dach dwuspadowy
piwnica
bez piwnicy
kubatura
385.45 m³
dostępne odbicie lustrzane
Nie
Pow. użytkowa
123.35 m²
długość działki
20.86 m
Powierzchnia dachu
145 m²

Opis projektu

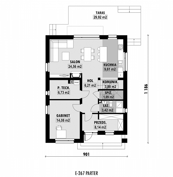
Rzuty

Rzut 1
Rzut 2

Elewacje

Sytuacja

O autorze projektu E-267

5 690 zł

Tylko u nas możesz negocjować cenę!
Skorzystaj z tej możliwości.

Lustrzane odbicie: niedostępne.

Masz dodatkowe pytania?
Zadzwoń lub zamów rozmowę.

Zamów rozmowę

Pomożemy Ci dopasować do twoich potrzeb mymarzony projekt, wpisz swój numer telefonu nasz konsultant oddzwoni.

Negocjuj cenę projektu E-267

Zapytaj pytanie o projekt E-267

Oceny i komentarze

Napisz swoją opinię