- Tylko online
Masz pytania? Chciałbyś negocjować cenę
Zadzwoń! 577 575 011
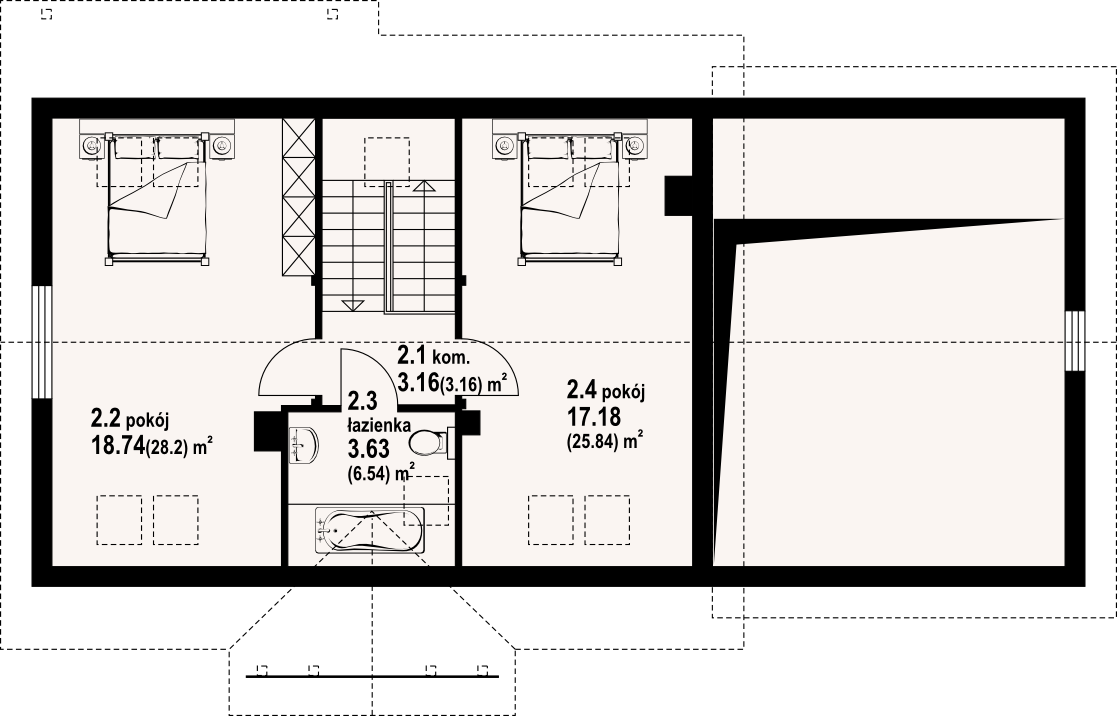
Dom w konstrukcji szkieletu drewnianego. Na parterze duży salon z aneksem kuchennym, kominkiem i wyjściem na częściowo zadaszony taras. Pokój, łazienka, wiatrołap, komunikacja, garaż i kotłownia. Na poddaszu dwa pokoje, łazienka i komunikacja. Zwarta bryła budynku i dach dwuspadowy sprzyjają szybkiej i taniej budowie i niskim kosztom eksploatacji.
