- Tylko online
Masz pytania? Chciałbyś negocjować cenę
Zadzwoń! 577 575 011
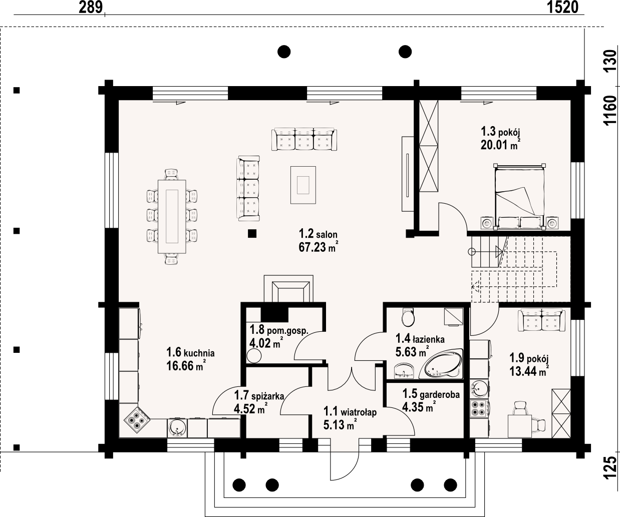
Dom z bali z poddaszem użytkowym. Na parterze duży salon z kominkiem oraz wyjściami na zadaszony taras. Duża, częściowo wydzielona kuchnia, dwa pokoje, łazienka, garderoba, pomieszczenie gospodarcze, spiżarka oraz wiatrołap. Na poddaszu cztery pokoje, łazienka, garderoba i komunikacja.
