- Tylko online
Masz pytania? Chciałbyś negocjować cenę
Zadzwoń! 577 575 011
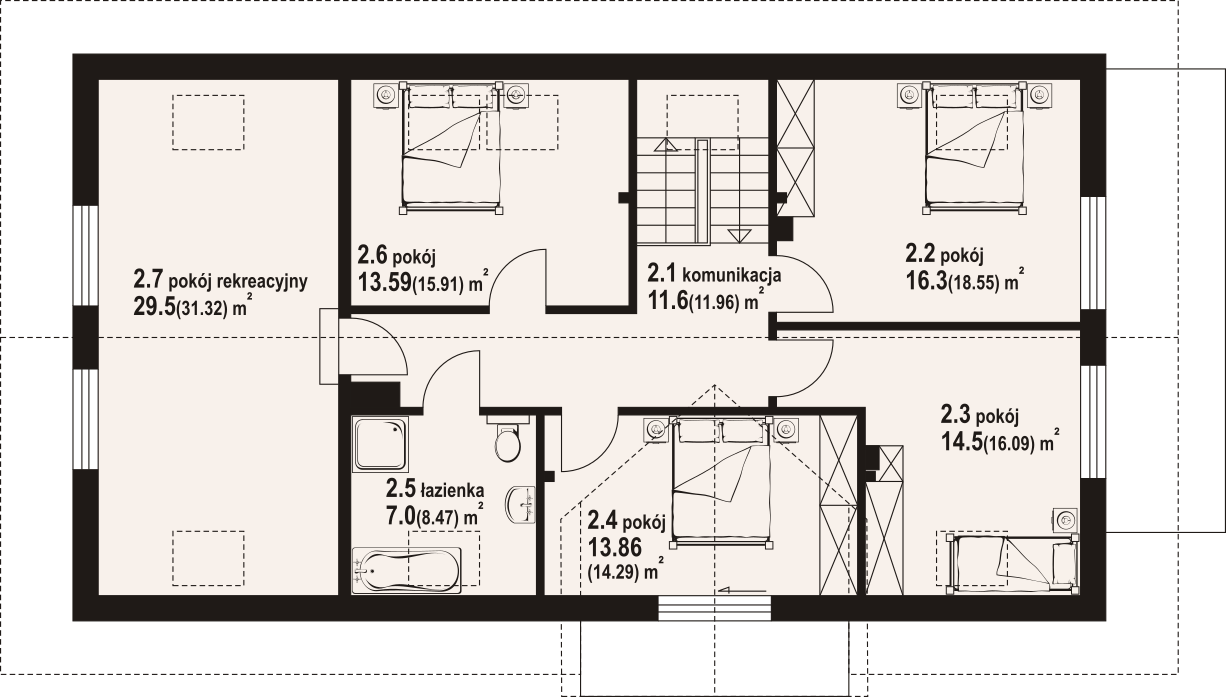
Dom z poddaszem użytkowym. Na parterze salon z aneksem kuchennym, kominkiem oraz wyjściami na taras. Pokój, łazienka, wiatrołap, komunikacja, spiżarka, kotłownia, garaż. Na poddaszu pięć pokoi, łazienka, komunikacja, dwa balkony. Zwarta bryła budynku oraz dach dwuspadowy sprzyjają szybkiej i taniej budowie oraz niskim kosztom eksploatacji.
