- Tylko online
Masz pytania? Chciałbyś negocjować cenę
Zadzwoń! 577 575 011
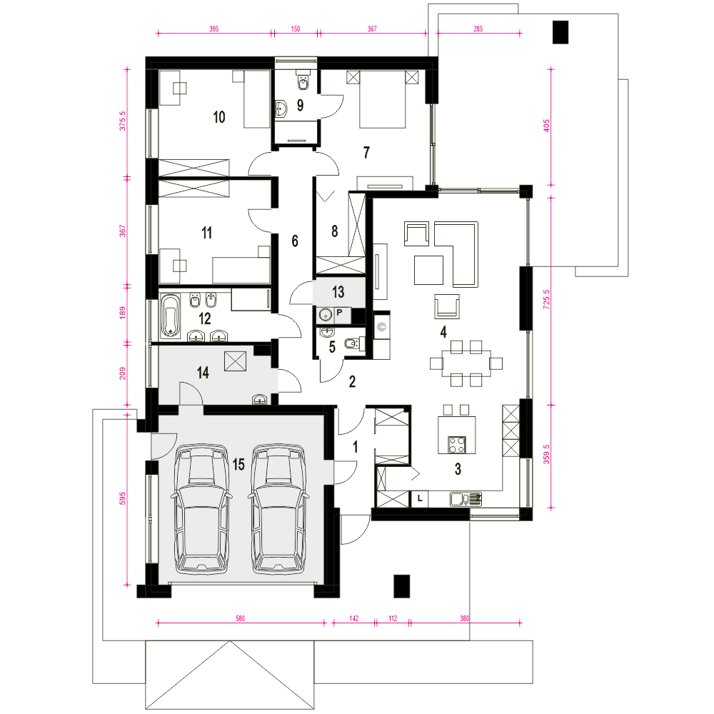
Projekt domu jednorodzinnego, parterowego z płaskim dachem dla 4- osobowej rodziny. Strefa dzienna w projekcie to: salon, kuchnia z wyspą i spiżarnią oraz wc dla gości. Strefa nocna zawiera 3 sypialnie w tym jedną z własną łazienką i garderobą, spora łazienka oraz pralnia i kotłownia z przejściem do garażu.fundamenty: BETONOWE ściany zewnętrzne: PUSTAK CERAM. POROTHERM+STYROPIAN TERMO ORGANIKA ściany wewnętrzne: PUSTAK POROTHERM rodzaj stropu: TERIVA I elewacje: TYNK STRUKTURALNY/OKŁ. DREWNOPODOBNA pokrycie dachu: BITUMICZNE
