- Tylko online
Masz pytania? Chciałbyś negocjować cenę
Zadzwoń! 577 575 011
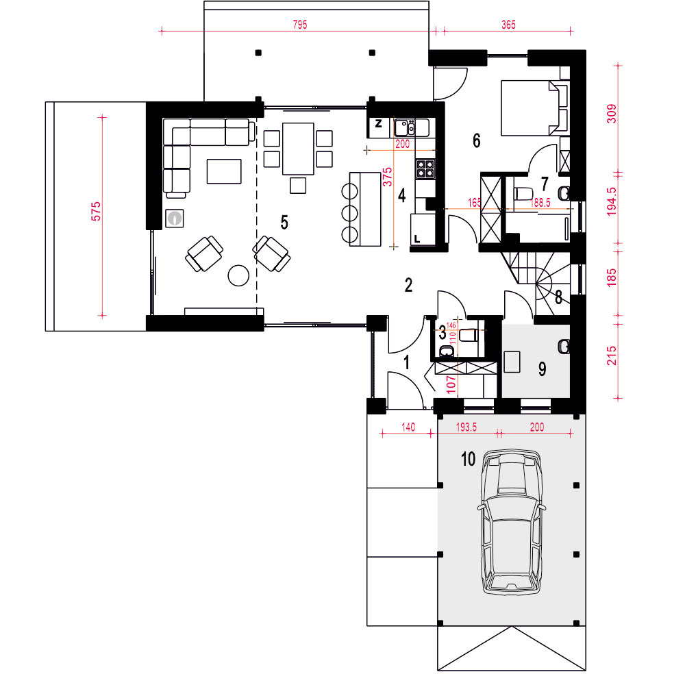
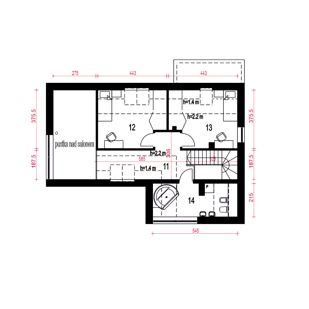
Sobota to nowoczesny domu jednorodzinny z poddaszem użytkowym, dwukondygnacyjny i prosty dom z jętkową konstrukcją dachu, z dobudowana wiatę garażową. Projekt jest dobrym rozwiązaniem na działki z wjazdem od strony południowej. Na parterze mieści się strefa dzienna - salon z jadalnią i otwartą kuchnią. Nad częścią salonu zaprojektowano antresolę. W wiatrołapie przewidziano miejsce na garderobę. Z holu możemy dostać się na schody, do WC oraz pomieszczenia technicznego z piecem CO a także do dwuosobowej sypialni z indywidualną łazienką. Na piętrze znajdują się dwie pojedyncze sypialnie z garderobami oraz duża łazienka. Z górnego holu, dzięki antresoli, można zajrzeć do salonu. Projekt Sobota to dobre ekonomiczne rozwiązanie o nowoczesnej, bezokapowej formie. Zewnętrzna elewacja cechuje się delikatnym detalem i naturalną kolorystyką.fundamenty: BETONOWE ściany zewnętrzne: POROTHERM+STYROPIAN TERMO ORGANIKA ściany wewnętrzne: POROTHERM rodzaj stropu: TERIVA elewacje: TYNK STRUKTURALNY, DREWNO pokrycie dachu: DACHÓWKA CERAMICZNA
