- Tylko online
Masz pytania? Chciałbyś negocjować cenę
Zadzwoń! 577 575 011
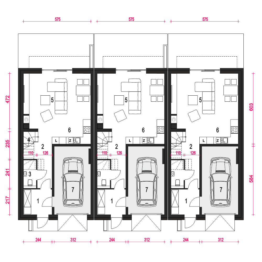
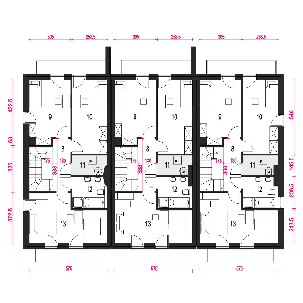
Projekt domu Jukka II w zabudowie szeregowej, to atrakcyjny dom piętrowy z płaskim dachem. To idealny projekt na wąskie działki o bardzo prostej i zwartej formie budynku oraz o niedużej powierzchni użytkowej - około 104 m2 - co przekłada się na niski koszt budowy i niskie koszty eksploatacji domu. Projekt Jukka II zaprojektowany jest dla 4-5cio osobowej rodziny. To dom o tradycyjnej konstrukcji z pustaków ceramicznych izolowanych styropianem, przykryty płaskim dachem. Na funkcję domu składa się część ogólnodostępna i prywatna, zgodnie z podziałem na parter i poddasze. W części ogólnodostępnej zaprojektowano część wejściową z wiatrołapem, holem, WC i schodami prowadzącymi na poddasze. Mamy tu też przewidziany jenostanowiskowy garaż. Dalej mamy zaprojektowany ustawny salon z kominkiem i jadalnią, oraz wygodny aneks kuchenny. Z salonu dostaniemy się na przydomowy ogród. Część prywatna zlokalizowana na poddaszu i obejmuje przedpokój z którego dostaniemy się do 3 sypialni, wspólnej łazienki oraz pomieszczenia pralni z piecem gazowym c.o. Jukka II w zabudowie szeregowej, to projekt domu energooszczędnego, bardzo prostego w realizacji i idealnego dla inwestycji deweloperskich.fundamenty: BETONOWE ściany zewnętrzne: POROTHERM+STYROPIAN TERMO ORGANIKA rodzaj stropu: TERIVA I elewacje: TYNK STRUKTURALNY/OKŁ. DREWNOPODOBNA pokrycie dachu: BITUMICZNE
