- Tylko online
Masz pytania? Chciałbyś negocjować cenę
Zadzwoń! 577 575 011
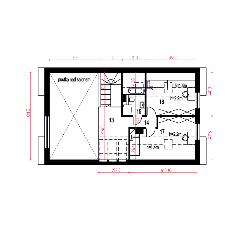
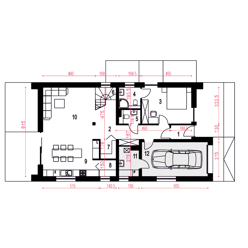
Projekt domu jednorodzinnego oparty na rzucie prostokąta z dachem dwuspadowym o kącie nachylenie dachu 45 st. Charakterystyczne duże przeszklenia i podkreślone okapy nadają budynkowi charakterystyczny wygląd. Wykończenie elewacji to naturalne materiały: drewno i okładzina ceramiczna lub kamienna. Do budynku wchodzi się przez wiatrołap. Długi korytarz, prowadzi do poszczególnych pomieszczeń: garażu (z nim pomieszczenie techniczne), sypialni dwuosobowej z indywidualna łazienką, garderoby, WC, na schody oraz do strefy dziennej. Salon z jadalnią i kuchnią oraz z antresolą doświetloną dużymi balkonowymi oknami połaciowymi to strefa dzienna. Na kondygnacji drugiej zaproponowano dwa pokoje oraz wspólną łazienkę. Dzięki jętkowej, bezsłupowej konstrukcji dachu piętro może być zaaranżowane dowolnie według potrzeb. Obok kuchni zaproponowano wygodną spiżarnię na domowe zapasy. Dom przewidziano dla 4 osobowej rodziny. Sobótka nadaje się na wąskie działki dzięki niewielkiej szerokości elewacji frontowej.fundamenty: BETONOWE ściany zewnętrzne: POROTHERM+STYROPIAN TERMO ORGANIKA ściany wewnętrzne: POROTHERM rodzaj stropu: TERIVA elewacje: TYNK STRUKTURALNY, CEGŁA KLINKIEROWA pokrycie dachu: DACHÓWKA CERAMICZNA
