- Tylko online
Masz pytania? Chciałbyś negocjować cenę
Zadzwoń! 577 575 011
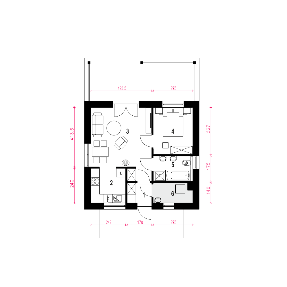
Projekt domu Bratek to mały domek parterowy dla 2-3 osobowej rodziny. Prosta konstrukcja i forma budynku w tym dwuspadowy dach sprawiają, że jest to dom bardzo ekonomiczny w budowie i w użytkowaniu. Projekt domu Bratek można z powodzeniem wykorzystać jako dom rekreacyjny do użytku własnego lub inwestycyjnie. Na funkcję domu składa się wiatrołap z wnękową szafą, kuchnia, salon z jadalnią, sypialnia, wygodna łazienka oraz kotłownia, na paliwo stałe. Od strony ogrodu projekt posiada wygodny zadaszony taras odpowiadający szerokości domu. W kotłowni z powodzeniem można zastosować również piec na paliwo gazowe, w tym celu możemy opracować stosowny aneks. Projekt domu Bratek to ekonomiczna propozycja domu energooszczędnego o powierzchni do 50m2.fundamenty: BETONOWE ściany zewnętrzne:: POROTHERM+STYROPIAN ściany wewnętrzne:: POROTHERM rodzaj stropu i konstrukcja dachu:: wiązary prefabrykowane MITEK elewacje: TYNK STRUKTURALNY, OKŁADZINA DREWNIANA pokrycie dachu: DACHÓWKA CEMENTOWA LUB CERAMICZNA
