- Tylko online
Masz pytania? Chciałbyś negocjować cenę
Zadzwoń! 577 575 011
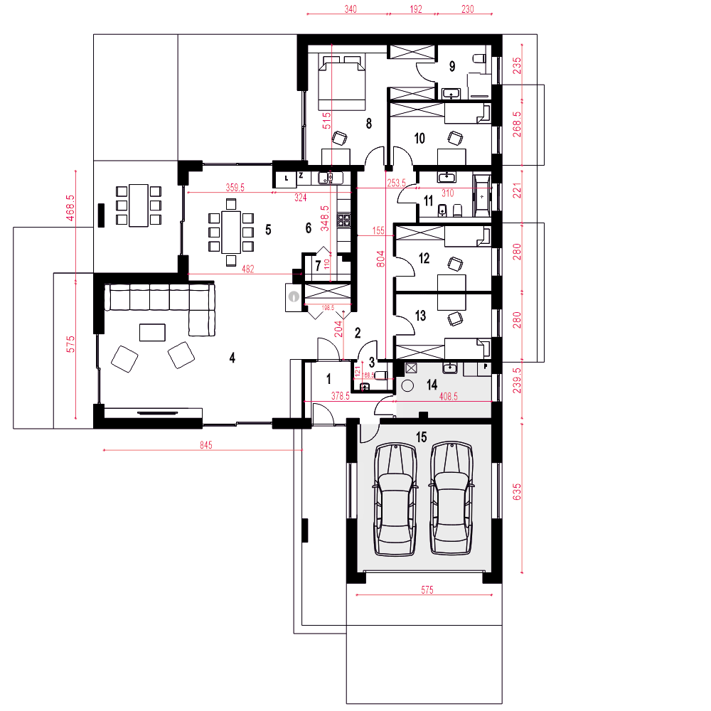
Projekt gotowy Arnika II to propozycja nowoczesnego domu parterowego. Dom jest przekryty dachem wielospadowym. Od przodu znajduje się garaż dwustanowiskowy. Do wnętrza wchodzi się poprzez duży wiatrołap rozprowadzający do garażu, pomieszczenia technicznego oraz części mieszkalnej. Hol wraz z komunikacją łączy część dzienną i nocną budynku. Otwarta przestrzeni salonu, kuchni i jadalni to strefa dzienna. Bezpośrednio z jadalni można dostać się na zadaszony taras. W części indywidualnej mamy cztery sypialnie i komfortową łazienkę. Największa dwuosobowa sypialnia posiada własną garderobę i indywidualną łazienkę. Wszystkie pomieszczenia sypialne łączy długi korytarz. Z każdej sypialni można wyjść bezpośrednio na ogród dzięki drzwiom balkonowym. Arnika II to wygodny, nowoczesny dom dla dużej rodziny, w której każdy z domowników znajdzie dla siebie miłą przestrzeń.fundamenty: BETONOWE ściany: POROTHERM+STYROPIAN rodzaj stropu: TERIVA I elewacje: TYNK STRUKTURALNY pokrycie dachu: DACHÓWKA CEM. lub CER.
