- Tylko online
Masz pytania? Chciałbyś negocjować cenę
Zadzwoń! 577 575 011
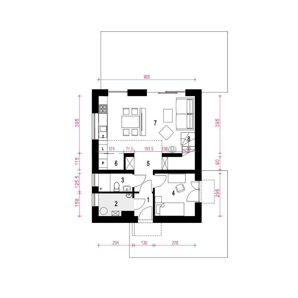
Amon to projekt nowoczesnego domu typu stodoła, z poddaszem użytkowym. Projekt domu Amon przewidziany jest dla osób poszukujących niewielkiego domu, spełniającego funkcję mieszkalną lub jako dom rekreacyjny. To atrakcyjny projekt domu o nowoczesnej, a przy tym prostej formie bryły, o dużych przeszkleniach, z elewacją i dachem pokrytymi blachą i z drewnianą okładziną elewacyjną. Na funkcję budynku składa się parter, gdzie przewidziano wygodny salon z wyjściem na obszerny taras, kuchnię z jadalnią, pokój sypialny, wydzieloną toaletę oraz poddasze z antresolą, dwoma sypialniami i łazienką. Dom idealnie wpisze się w każdy krajobraz, ale dzięki kolorystyce i materiałom zastosowanym na elewacji będzie się idealnie komponował w otoczeniu natury. Dzięki zastosowanym rozwiązaniom energooszczędnym w tym odpowiedniej grubości izolacji termicznej oraz dzięki ciepłemu montażowi stolarki, dom powinien być ekonomiczny w użytkowaniu.fundamenty: BETONOWE ściany zewnętrzne: POROTHERM+STYROPIAN TERMO ORGANIKA rodzaj stropu: ŻELBETOWY elewacje: BLACHA, OKŁADZINA DREWNIANA pokrycie dachu: BLACHA
