- Tylko online
Masz pytania? Chciałbyś negocjować cenę
Zadzwoń! 577 575 011
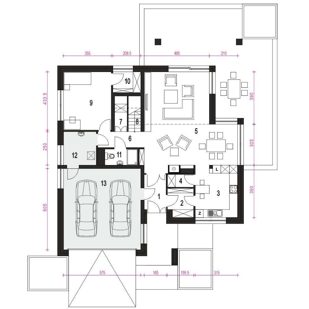
Willa sosnowa wariant A1 to projekt domu, przeznaczony na tereny pod zabudowę willową. Willa została zaprojektowana jako komfortowy budynek jednorodzinny, dwu piętrowy. Konstrukcja budynku jest tradycyjna murowana, z dachem zaprojektowanym z nowoczesnych prefabrykowanych wiązarów drewnianych. Parter obejmuje duży wiatrołap z garderobą, kuchnię ze spiżarnią, jadalnię, kominek, wygodny salon z dużymi drzwiami tarasowymi. Zaprojektowano tu też pokój gościnny z garderobą, łazienkę a w części gospodarczej, kotłownię i dwustanowiskowy garaż. Na poddasze prowadzą wygodne schody dwubiegowe. Mamy tu przewidziane trzy wygodne sypialnie z garderobami i master bedroom z garderobą i łazienką. Ponadto jest tu wygodna, dobrze wyposażona łazienka, schowek oraz pralnia z wyjściem na zewnętrzny taras.
