- Tylko online
Masz pytania? Chciałbyś negocjować cenę
Zadzwoń! 577 575 011
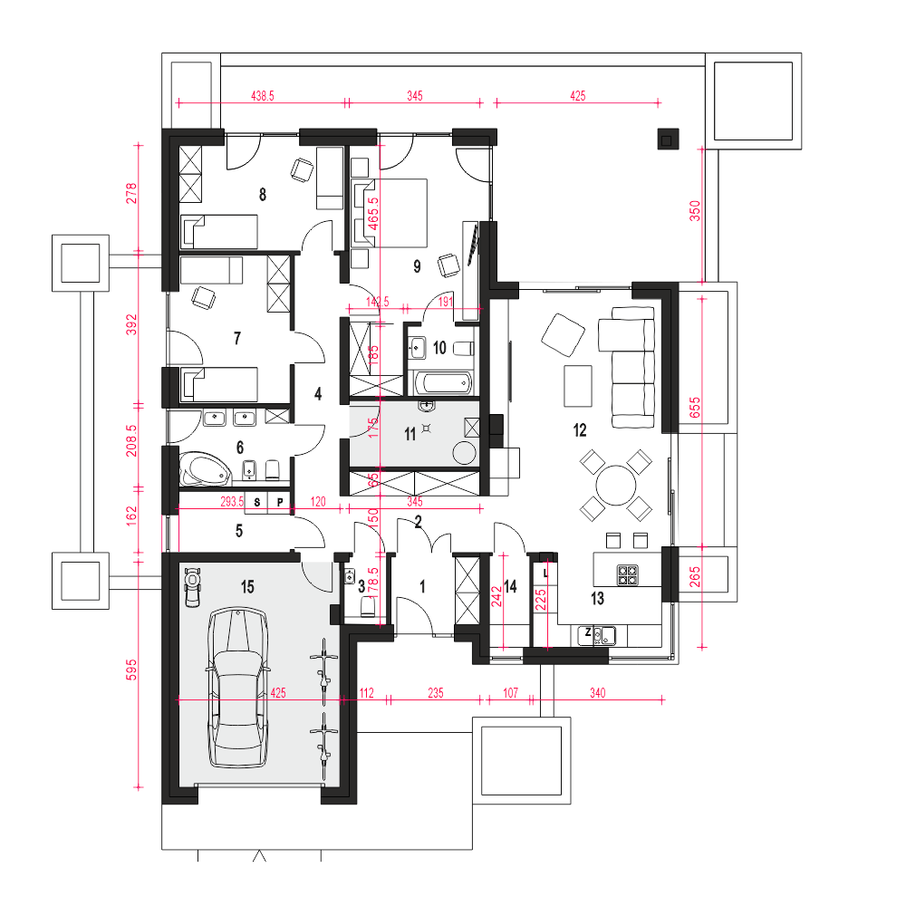
Projekt domu parterowego Klara III z garażem to idealna propozycja dla 4 do 5cio osobowej rodziny. Dom zaprojektowany jest w technologii murowanej z tradycyjną więźbą dachową, przekryty spadzistym dachem kopertowym. Klara III to funkcjonalny projekt domu parterowego, łączący strefę ogólnodostępną i prywatną na jednej kondygnacji. Projekt jest zmienioną wersją projektu Klara II, gdzie w zamian pokoju został doprojektowany garaż. W części wejściowej mamy zaprojektowany wygodny wiatrołap i hol z szafami wnękowymi, pralnię oraz toaletę. W części ogólnodostępnej przewidziano przestronny i dobrze doświetlony salon z miejscem na wygodny stół jadalniany, z widokiem na ogród. Dzięki dużym drzwiom tarasowym od strony ogrodowej, dostaniemy się wprost na taras zewnętrzny, zadaszony podcieniem. W strefie ogólnodostępnej projekt przewiduje również wygodną kuchnię z wyspą i praktyczną spiżarnią. Kuchnia z układem mebli w kształcie litery "L", zapewnia wygodną przestrzeń do pracy, a duże frontowe okno doświetla idealnie przestrzeń roboczą. Do części prywatnej domu dostaniemy się przez korytarz dostępny z holu wejściowego. W części prywatnej mamy zaprojektowane cztery pokoje sypialne w tym jeden typu master bedroom. Znajdziemy tu też wygodną, wspólną łazienkę z wanną oraz pomieszczenie techniczne z piecem CO. Klara III to atrakcyjna propozycja domu energooszczędnego, o nowoczesnym wyglądzie. To projekt domu z serii "eco" - ekonomiczny w budowie i w utrzymaniu - idealna propozycja dla rodzin planujących budowę pierwszego domu.fundamenty: BETONOWE ściany zewnętrzne: POROTHERM+STYROPIAN TERMO ORGANIKA rodzaj stropu: TERIVA I elewacje: TYNK STRUKTURALNY pokrycie dachu: DACHÓWKA CEM. lub CER.
