- Tylko online
Masz pytania? Chciałbyś negocjować cenę
Zadzwoń! 577 575 011
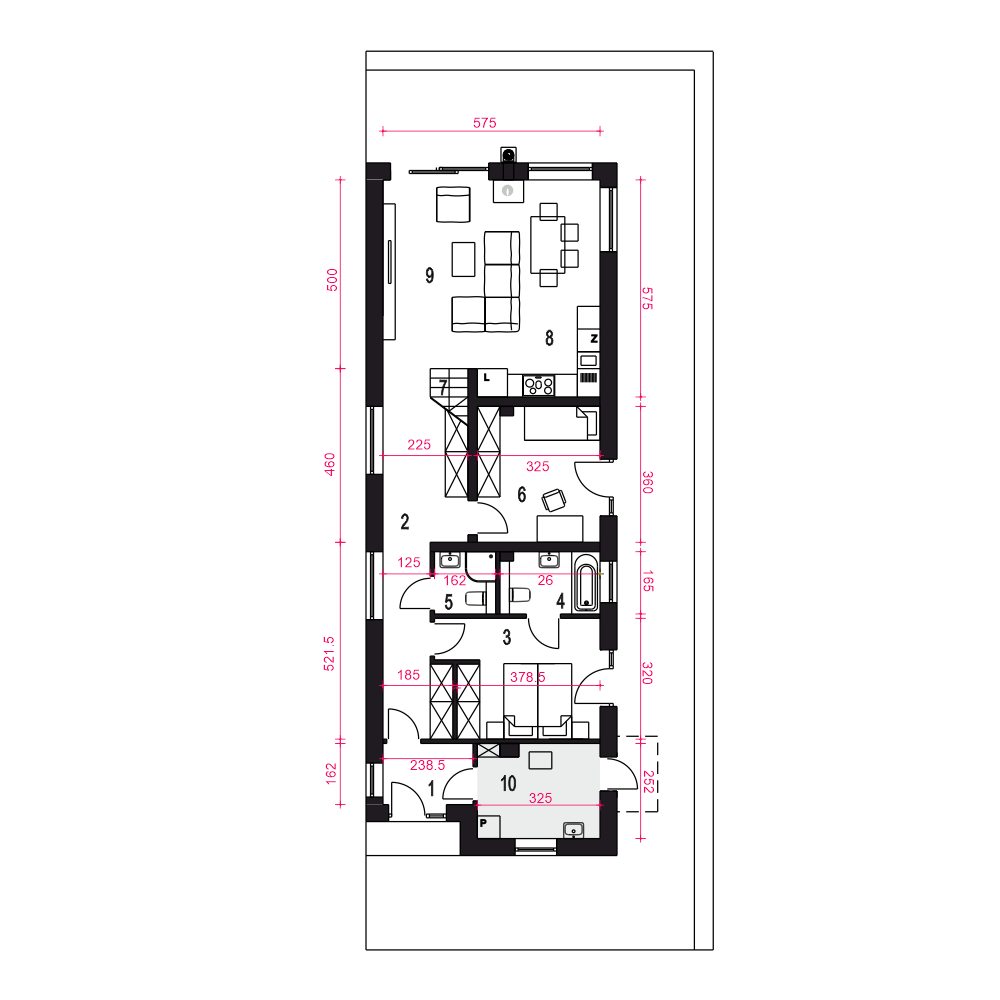
Chmiel to ciekawy projekt domu jednorodzinnego, bardzo długiego i wąskiego. Dom jest przewidziany dla 3-4 osobowej rodziny. Bryła budynku oparta jest na prostokątnym rzucie i przekryta jest dachem dwuspadowym o kącie nachylenia 45 st. Po wejściu do budynku wchodzimy do wiatrołapu, obok którego jest pomieszczenie techniczne z piecem CO. W części mieszkalnej na parterze są dwie sypialnie (jedna z nich ma indywidualna łazienkę), korytarz, schody. Na końcu budynku jest salon, kuchnia oraz jadalnia. Salon ma duże przeszklenia i otwarcie aż do dachu oraz antresolę i kominek. Na poddaszu mieści się spora przestrzeń do indywidualnego zagospodarowania. Architektura i przemyślana funkcja są atutami tego nowoczesnego domu.
