- Tylko online
Masz pytania? Chciałbyś negocjować cenę
Zadzwoń! 577 575 011
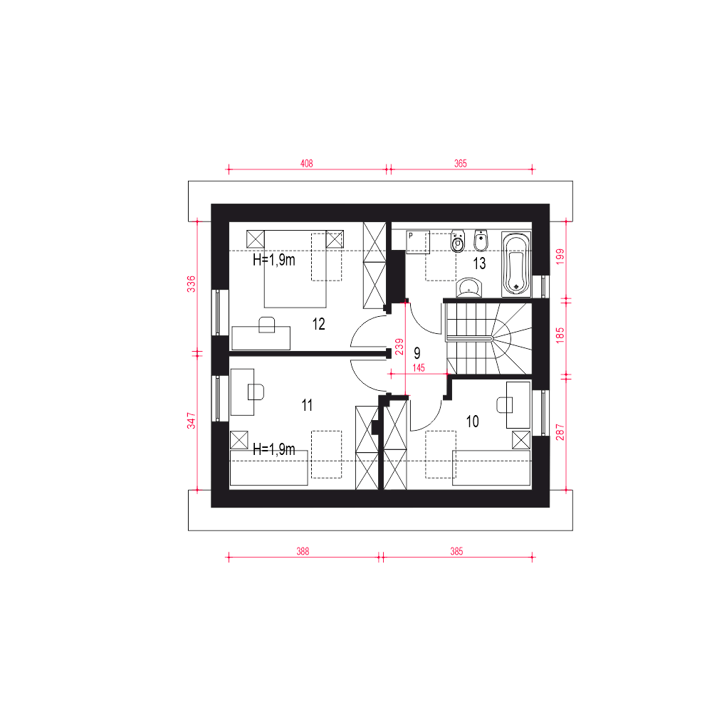
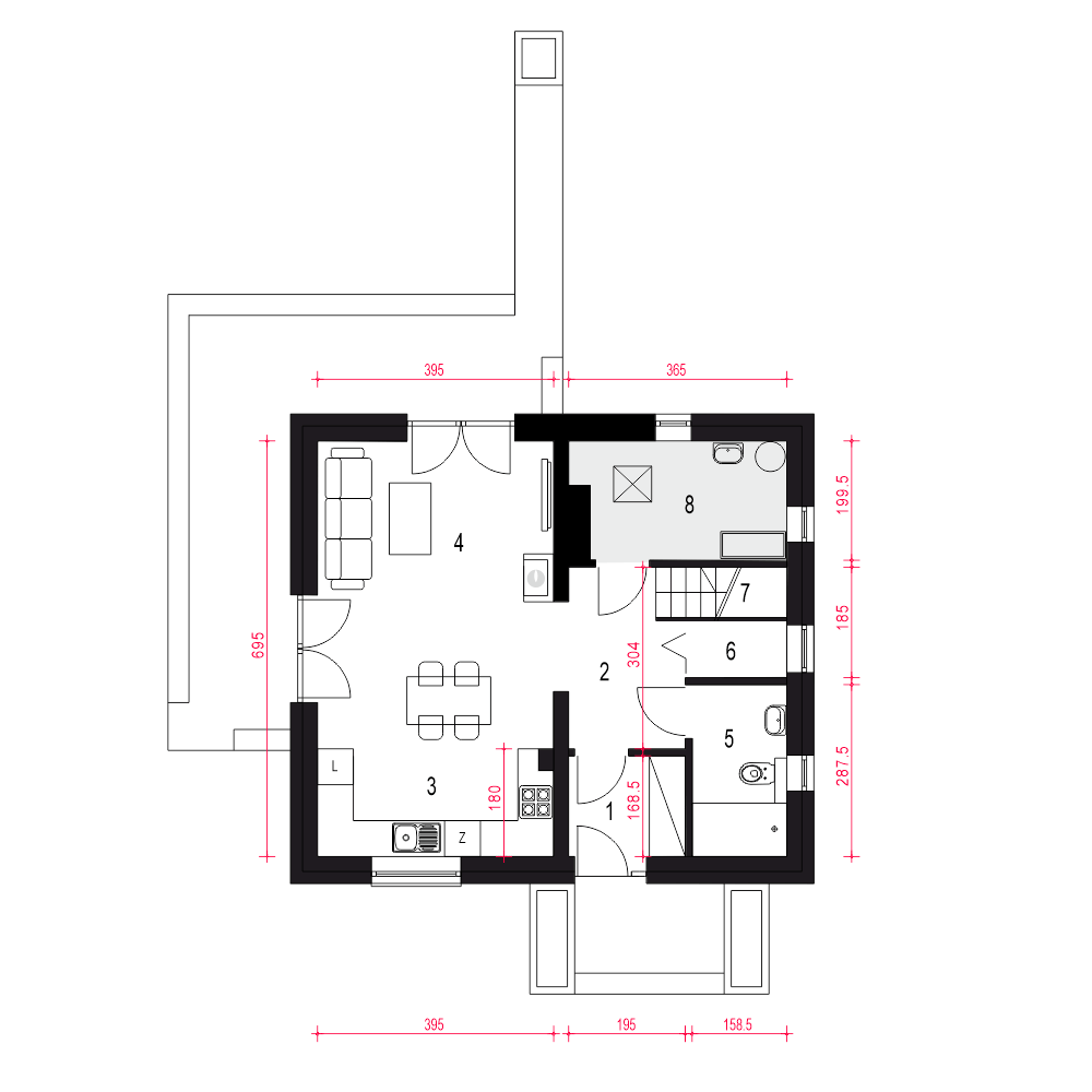
Pomelo - projekt małego domu z powierzchnią zabudowy do 70m2.fundamenty: BETONOWE ściany zewnętrzne: POROTHERM+STYROPIAN TERMO ORGANIKA ściany wewnętrzne: POROTHERM rodzaj stropu: TERIVA elewacje: TYNK STRUKTURALNY, OKŁADZINA DREWNIANA pokrycie dachu: DACHÓWKA CERAMICZNA
