- Tylko online
Masz pytania? Chciałbyś negocjować cenę
Zadzwoń! 577 575 011
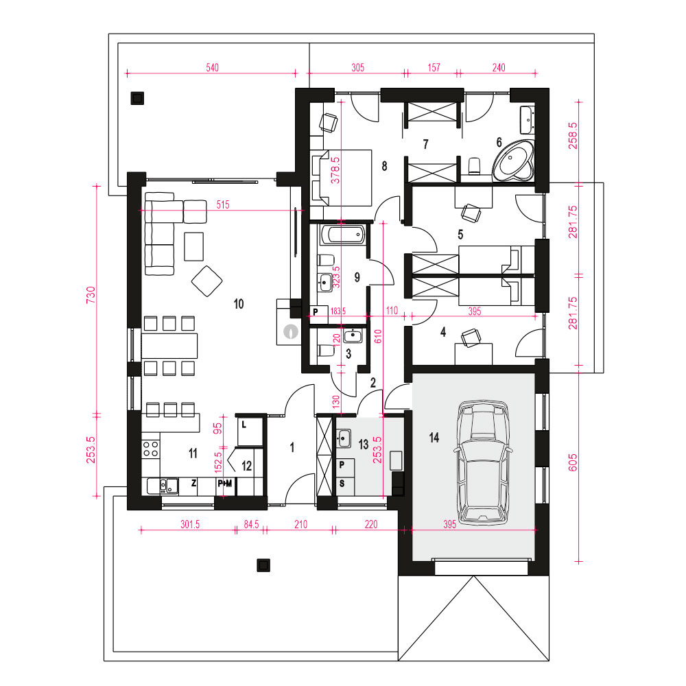
Melisa III to propozycja nowoczesnego domu jednorodzinnego dla 3-4osobowej rodziny. Główna bryła Melisy jest założona na planie kwadratu przekryta regularnym dachem o kącie nachylenia 30 stopni z garażem jednostanowiskowym. Zadaszenie strefy wejściowej przed domem oraz dwustanowiskowy wysunięty garaż tworzą zgrabne zadaszenie wejścia. W środku zaprojektowano trzy sypialnie umiejscowione od strony ogrodowej w głębi domu. Dwuosobowa sypialnia, posiada indywidualną łazienkę oraz garderobę. Z każdej z sypialni można wyjść bezpośrednio na ogród. W strefie indywidualnej zaplanowano wspólną łazienkę z wanną. Przy kuchni otwartej na jadalnię i salon przewidziano wygodną spiżarnię. Z salonu można wyjść do strefy ogrodowej poprzez zadaszony taras. Z korytarza można się dostać do garażu poprzez pomieszczenie techniczne z piecem CO. W wiatrołapie mamy miejsce na szafę wnękową. Cały projekt zawiera wszystko co niezbędne dla wygodnego, rodzinnego życia, a duży salon z zadaszonym tarasem i kominkiem jest jego sercem.fundamenty: BETONOWE ściany zewnętrzne: POROTHERM+STYROPIAN TERMO ORGANIKA ściany wewnętrzne: POROTHERM rodzaj stropu: TERIVA elewacje: TYNK STRUKTURALNY, CEGŁA KLINKIEROWA pokrycie dachu: DACHÓWKA CERAMICZNA
