- Tylko online
Masz pytania? Chciałbyś negocjować cenę
Zadzwoń! 577 575 011
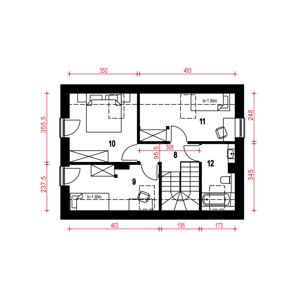
Borówka to mały domek o pow. zabudowy do 70m2. Projekt zawiera salon z kuchnia oraz dodatkowy pokój na parterze a na poddaszu 3 pokoje i łazienkę. Urokliwa Borówka może z powodzeniem stać się wygodnym lokum dla dla 4 osobowej rodziny. Projekt cechuje proporcjonalna bryła oraz eleganckie w wykończeniu elewacje.fundamenty: BETONOWE ściany zewnętrzne: POROTHERM+STYROPIAN TERMO ORGANIKA ściany wewnętrzne: POROTHERM rodzaj stropu: TERIVA elewacje: TYNK STRUKTURALNY, CEGŁA KLINKIEROWA pokrycie dachu: DACHÓWKA CERAMICZNA
