Informujemy, iż nasz sklep internetowy wykorzystuje technologię plików cookies a jednocześnie nie zbiera w sposób automatyczny żadnych informacji, z wyjątkiem informacji zawartych w tych plikach (tzw. „ciasteczkach”).

D311

  • Tylko online

Dane techniczne

powierzchnia
27.45 m²
wysokość
4.4 m
kąt dachu
25 °
szerokość działki
14.35 m
Liczba pokoi
1
Powierzchnia zabudowy
34.92
kondygnacje
parterowe
garaż
bez garażu
dach
dach dwuspadowy
konstrukcja
murowane
zabudowa
domy wolnostojące
piwnica
bez piwnicy
kubatura
131 m³
dostępne odbicie lustrzane
Nie
Pow. użytkowa
27.45 m²
długość działki
13.5 m
Liczba łazienek
1

Opis projektu

Rzuty

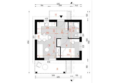
Parter
1 komunikacja
3.3
2 łazienka
3.3
3 salon z aneksem kuchennym
13.7
4 sypialnia
7.15
5 ganek
3.57
6 taras
9

Elewacje

Sytuacja

O autorze projektu D311

2 899 zł

Tylko u nas możesz negocjować cenę!
Skorzystaj z tej możliwości.

Lustrzane odbicie: niedostępne.

Masz dodatkowe pytania?
Zadzwoń lub zamów rozmowę.

Zamów rozmowę

Pomożemy Ci dopasować do twoich potrzeb mymarzony projekt, wpisz swój numer telefonu nasz konsultant oddzwoni.

Negocjuj cenę projektu D311

Zapytaj pytanie o projekt D311

Oceny i komentarze

Napisz swoją opinię