- Tylko online
Masz pytania? Chciałbyś negocjować cenę
Zadzwoń! 577 575 011
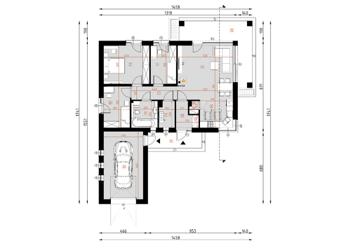
Projekt domu parterowego bez poddasza. Na salonem jest otwarcie stropu do dachu. Widoczne są krokwie. Okna dachowe doświetlają w tym miejscu salon.
