Informujemy, iż nasz sklep internetowy wykorzystuje technologię plików cookies a jednocześnie nie zbiera w sposób automatyczny żadnych informacji, z wyjątkiem informacji zawartych w tych plikach (tzw. „ciasteczkach”).

D321 - WT2021

  • Tylko online

Dane techniczne

powierzchnia
123.23 m²
wysokość
7.7 m
kąt dachu
40 °
szerokość działki
21 m
Liczba pokoi
5
Powierzchnia zabudowy
100.78
kondygnacje
z poddaszem użytkowym
garaż
bez garażu
dach
dach dwuspadowy
konstrukcja
szkieletowe
zabudowa
domy wolnostojące
piwnica
bez piwnicy
kubatura
595 m³
dostępne odbicie lustrzane
Nie
Pow. użytkowa
123.23 m²
długość działki
16.19 m
Liczba łazienek
2

Opis projektu

Rzuty

Parter
1 wiatrołap
2.68
2 hall
2.93
3 kuchnia + jadalnia
10.86
4 spiżarnia
0.85
5 pokój dzienny
20.89
6 schody
2.1
7 korytarz
3.75
8 pokój
8.83
9 pokój
10.84
10 pokój
12.35
11 łazienka
2.39
12 pomieszczenie techniczne
2.86
13 taras 1
8.65
14 taras 2
19.64
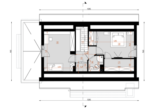
Poddasze
1 schody
2.11
2 hall
3.61
3 schowek
0.84
4 łazienka
2.49
5 pokój
16.31
6 pokój
15.15
7 garderoba
4.25

Elewacje

Sytuacja

O autorze projektu D321 - WT2021

3 699 zł

Tylko u nas możesz negocjować cenę!
Skorzystaj z tej możliwości.

Lustrzane odbicie: niedostępne.

Masz dodatkowe pytania?
Zadzwoń lub zamów rozmowę.

Zamów rozmowę

Pomożemy Ci dopasować do twoich potrzeb mymarzony projekt, wpisz swój numer telefonu nasz konsultant oddzwoni.

Negocjuj cenę projektu D321 - WT2021

Zapytaj pytanie o projekt D321 - WT2021

Oceny i komentarze

Napisz swoją opinię