Informujemy, iż nasz sklep internetowy wykorzystuje technologię plików cookies a jednocześnie nie zbiera w sposób automatyczny żadnych informacji, z wyjątkiem informacji zawartych w tych plikach (tzw. „ciasteczkach”).

D306 - WT2021

  • Tylko online

Dane techniczne

powierzchnia
95.59 m²
wysokość
7.38 m
kąt dachu
37 °
szerokość działki
21.11 m
Liczba pokoi
4
Powierzchnia zabudowy
111.02
kondygnacje
z poddaszem użytkowym
garaż
z garażem 1 st.
dach
dach dwuspadowy
konstrukcja
murowane
zabudowa
domy wolnostojące
piwnica
bez piwnicy
kubatura
593.72 m³
dostępne odbicie lustrzane
Nie
Pow. użytkowa
95.59 m²
długość działki
17.48 m
Liczba łazienek
2

Opis projektu

Rzuty

Parter
1 wiatrołap
3
2 hall
5.76
3 łazienka
4.2
4 pokój
10.98
5 salon/jadalnia
20.45
6 kuchnia
5.83
7 spiżarnia
1.05
8 pom. techniczne
3.71
9 garaż
28
10 schody
2.13
11 taras 1
7.2
12 taras 2
11.95
13 taras 3
5
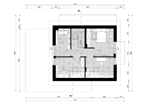
Poddasze
1 korytarz
4.89
1 pokój
8.2
1 pokój 1
7.98
1 pokój 3
10.3
1 łazienka
6.31
1 schody
4.51
7 balkon 1
3.66

Elewacje

Sytuacja

O autorze projektu D306 - WT2021

4 499 zł

Tylko u nas możesz negocjować cenę!
Skorzystaj z tej możliwości.

Lustrzane odbicie: niedostępne.

Masz dodatkowe pytania?
Zadzwoń lub zamów rozmowę.

Zamów rozmowę

Pomożemy Ci dopasować do twoich potrzeb mymarzony projekt, wpisz swój numer telefonu nasz konsultant oddzwoni.

Negocjuj cenę projektu D306 - WT2021

Zapytaj pytanie o projekt D306 - WT2021

Oceny i komentarze

Napisz swoją opinię