Informujemy, iż nasz sklep internetowy wykorzystuje technologię plików cookies a jednocześnie nie zbiera w sposób automatyczny żadnych informacji, z wyjątkiem informacji zawartych w tych plikach (tzw. „ciasteczkach”).

D320 - WT2021

  • Tylko online

Dane techniczne

powierzchnia
137.82 m²
wysokość
7.07 m
kąt dachu
40 °
szerokość działki
19.02 m
Liczba pokoi
5
Powierzchnia zabudowy
168.2
kondygnacje
z poddaszem użytkowym
garaż
z garażem 1 st.
dach
dach dwuspadowy
konstrukcja
murowane
zabudowa
domy wolnostojące
piwnica
bez piwnicy
kubatura
857.85 m³
dostępne odbicie lustrzane
Nie
Pow. użytkowa
137.82 m²
długość działki
25.48 m
Liczba łazienek
3

Opis projektu

Rzuty

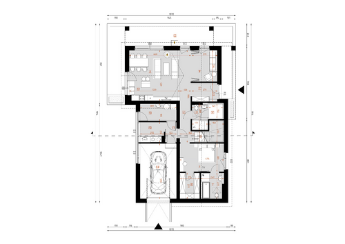
Parter
1 wiatrołap
5.36
2 korytarz
5.72
3 łazienka
4.58
4 sauna
2.24
5 pokój
14.04
6 garderoba
5.8
7 łazienka
6.39
8 pokój
8.91
9 pokój dzienny
29.86
10 kuchnia
5.17
11 korytarz
2.53
12 pom. gospodarcze
5.19
13 kotłownia
6.96
14 garaż jednostanowiskowy
22.65
15 taras
42.23
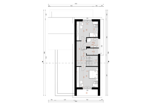
Poddasze
1 schody
5.7
2 korytarz
7.85
3 łazienka
5.12
4 pokój
3.49
5 pokój
14.96
6 pokój
12.63
7 taras
6.49

Elewacje

Sytuacja

O autorze projektu D320 - WT2021

4 799 zł

Tylko u nas możesz negocjować cenę!
Skorzystaj z tej możliwości.

Lustrzane odbicie: niedostępne.

Masz dodatkowe pytania?
Zadzwoń lub zamów rozmowę.

Zamów rozmowę

Pomożemy Ci dopasować do twoich potrzeb mymarzony projekt, wpisz swój numer telefonu nasz konsultant oddzwoni.

Negocjuj cenę projektu D320 - WT2021

Zapytaj pytanie o projekt D320 - WT2021

Oceny i komentarze

Napisz swoją opinię