- Tylko online
Masz pytania? Chciałbyś negocjować cenę
Zadzwoń! 577 575 011
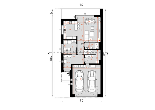
Układ funkcjonalny budynku: Kondygnacja parteru, każdego z lokali składa się z przedsionka wejściowego, salonu z jadalnią oraz kuchnią, łazienki, gabinetu, kotłowni oraz garażu dwustanowiskowego Kondygnacja piętra każdego z lokali składa się z głównej sypialni z łazienką oraz garderobą, trzech pokoi sypialnianych, łazienki, pralni, oraz korytarza z klatką schodową łączącego pomieszczenia. Całość zabudowy okala taras zewnętrzny. D330A to wersja tego projektu w zbliźniaczeniu. WYSOKOŚĆ BUDYNKU (od poz. posadzki parteru +/-0.00 do świetlika) 7,76 m WYSOKOŚĆ BUDYNKU (od poz. terenu do świetlika) MAX. 8,10 m WYSOKOŚĆ BUDYNKU (od poz. terenu do dachu płaskiego) MAX. 7,20 m
