D292A - WT2021 wersja drewniana
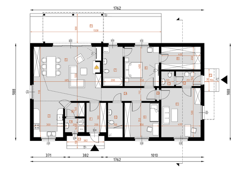
Dane techniczne
- powierzchnia
- 139.53 m²
- wysokość
- 4.64 m
- kąt dachu
- 18 °
- szerokość działki
- 25.62 m
- Liczba pokoi
- 3
- Powierzchnia zabudowy
- 172.22
- kondygnacje
- parterowe
- garaż
- bez garażu
- dach
- dach dwuspadowy
- konstrukcja
- szkieletowe
- zabudowa
- domy wolnostojące
- piwnica
- bez piwnicy
- kubatura
- 594.8 m³
- dostępne odbicie lustrzane
- Nie
- Pow. użytkowa
- 139.53 m²
- długość działki
- 18.38 m
- Liczba łazienek
- 3
Opis projektu
O autorze projektu D292A - WT2021 wersja drewniana

Zobacz inne, podobne projekty